yituLogo
当前的位置:首页 > 文本 > 硬装方案文本 > 样板间 > 无间北京首钢重庆悦来临江别墅PPT深化方案

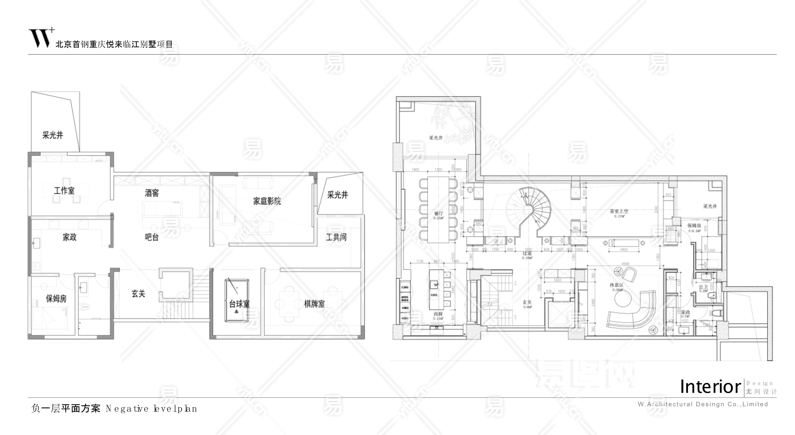
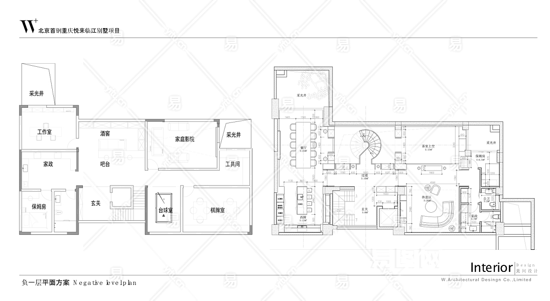
无间北京首钢重庆悦来临江别墅PPT深化方案

收藏 ()
ID:4018
文  件  格  式PPTX(55)页 大        小68.37MB 设计师 / 机构无间 上  传  时  间20241125
24 图币
VIP专享价 0图币
友情链接 热门模型 免费模型