yituLogo
当前的位置:首页 > 文本 > 硬装方案文本 > 样板间 > 融创杭州萧山科技城排屋室内PPT设计方案

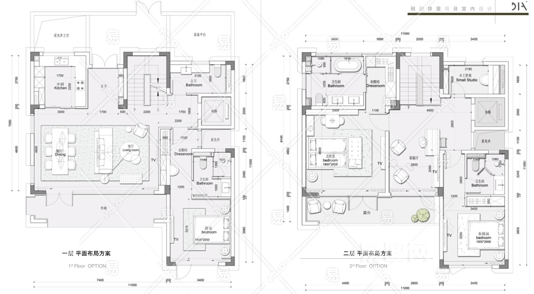
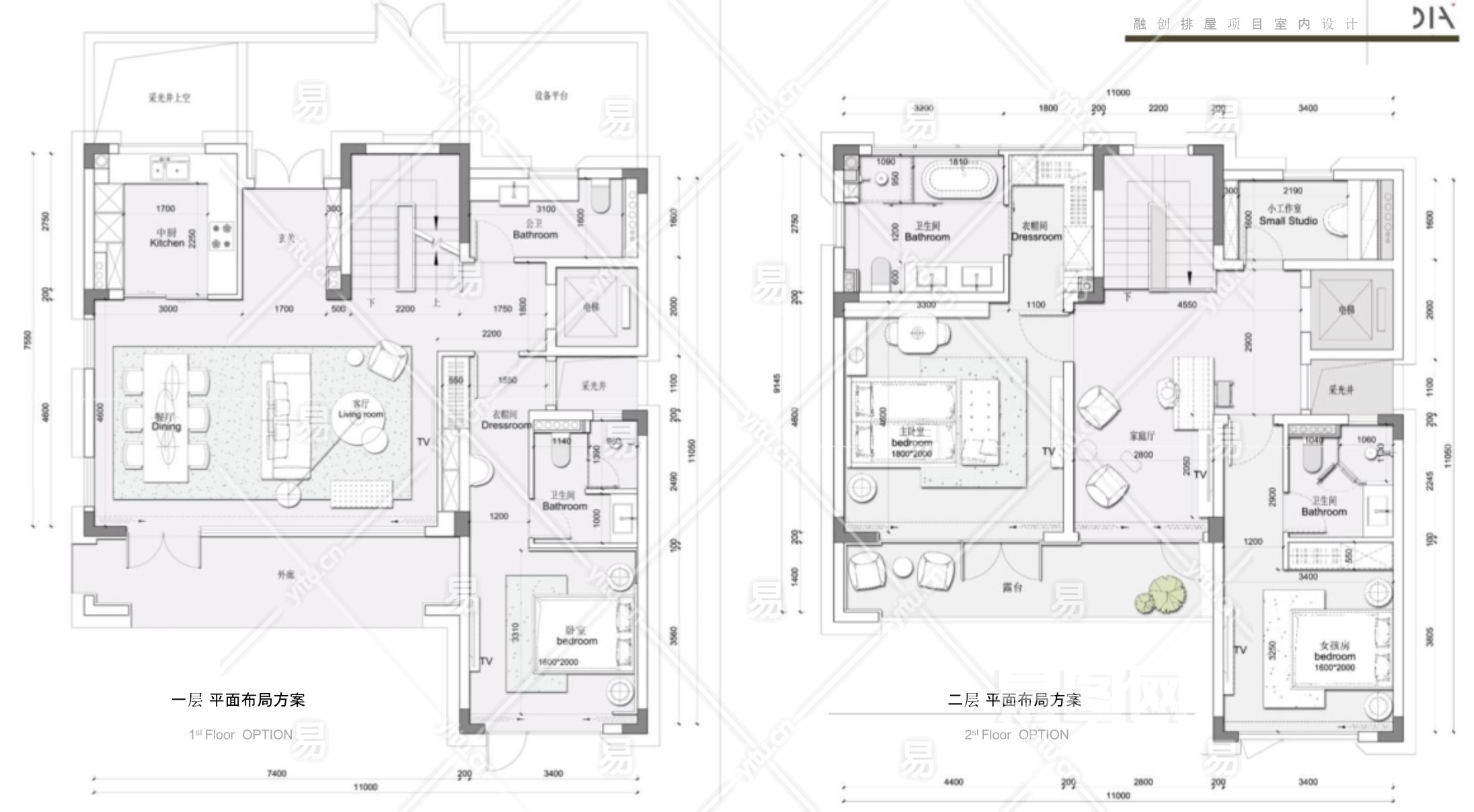
融创杭州萧山科技城排屋室内PPT设计方案

收藏 ()
ID:3991
文  件  格  式PPTX(35)页 大        小3.76MB 设计师 / 机构融创 上  传  时  间20241125
24 图币
VIP专享价 0图币
友情链接 热门模型 免费模型