yituLogo
当前的位置:首页 > 文本 > 景观文本 > 美丽乡村 > 生态农业观光旅游乡村规划设计方案

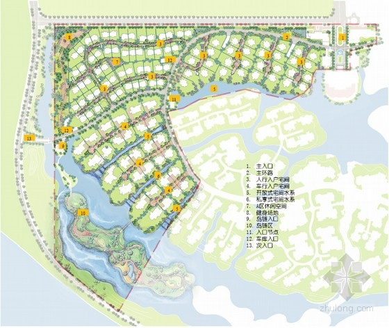
生态农业观光旅游乡村规划设计方案

收藏 ()
ID:348
文  件  格  式2008 大        小74.80MB 设计师 / 机构yitu 上  传  时  间20190920
30 图币
VIP专享价 0图币
友情链接 热门模型 免费模型