yituLogo
当前的位置:首页 > 文本 > 硬装方案文本 > 售楼处 > 胶州旭辉售楼处PPT方案

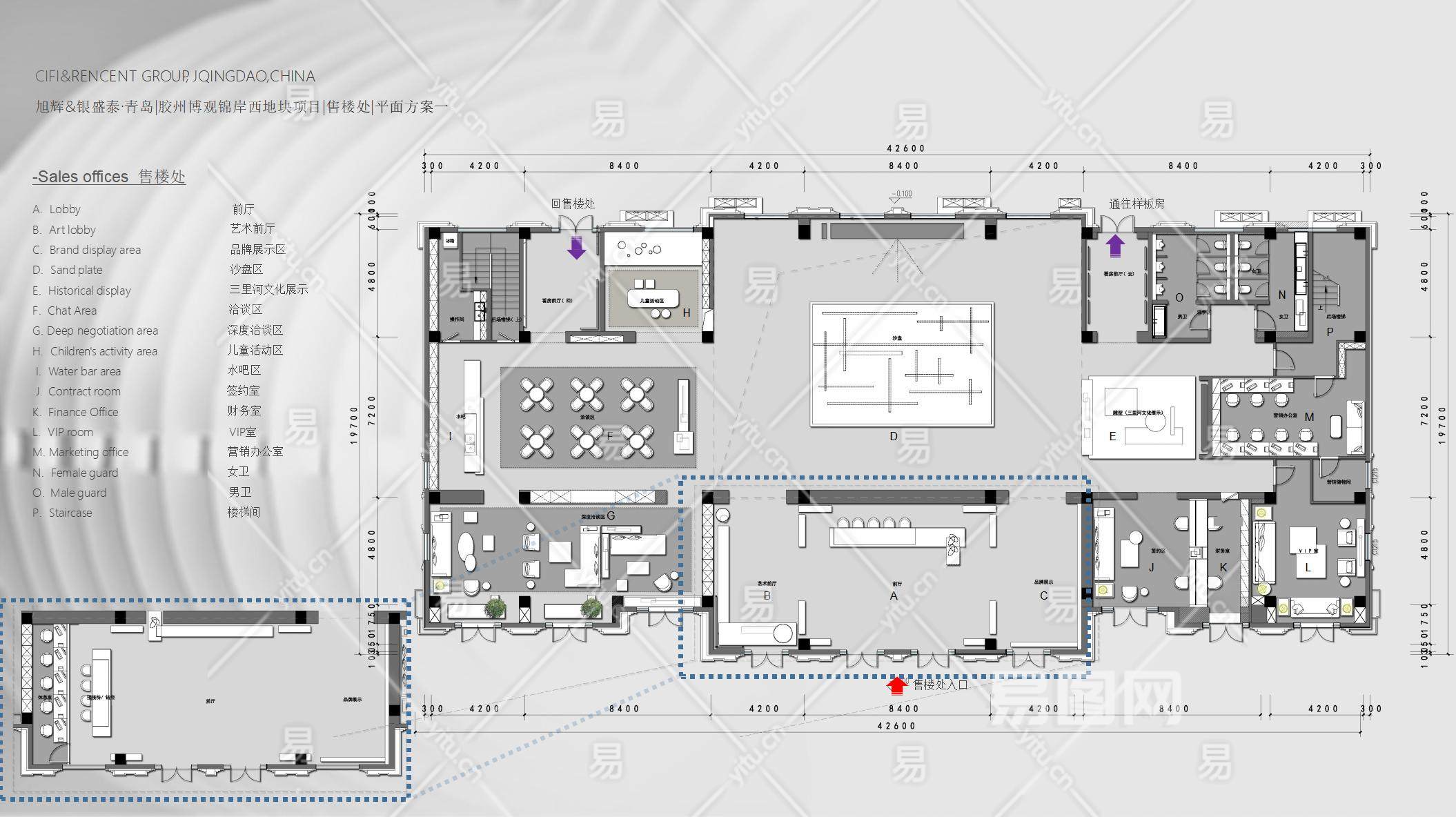
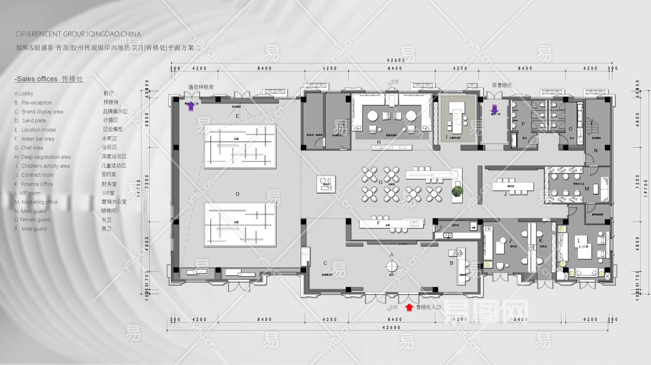
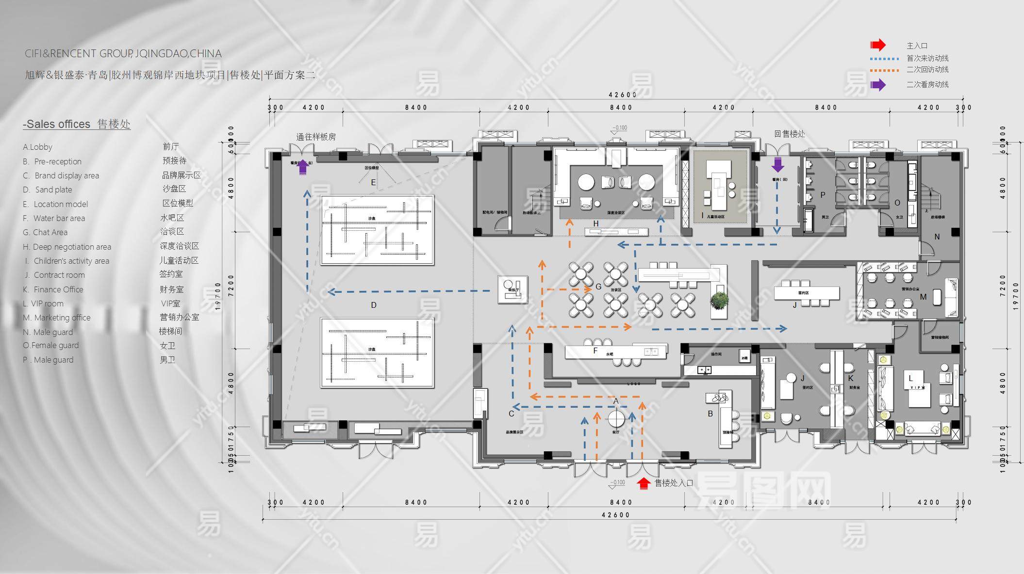
胶州旭辉售楼处PPT方案

收藏 ()
ID:2422
文  件  格  式ppt 大        小37.00MB 设计师 / 机构yitu 上  传  时  间20221009
20 图币
VIP专享价 0图币
友情链接 热门模型 免费模型