yituLogo
当前的位置:首页 > 室内CAD图纸 > cad > 工装图纸 > 专卖店 > 汽车美容结构图,汽车美容CAD图纸下载

图纸介绍

               空间划分:成套专卖店                               图纸深度:施工图

               功能类型:汽车专卖店                               设计风格:现代风格

              图片格式:JPG

资料为:汽车美容结构图

资料内容包括:全套CAD施工图,夹层钢结构示意图,夹层平面图,首层平面图,外立面图,下室平面图,节点大样图,轴立面图等,内容详实,图纸中无错漏碰缺。作图规范,具有较高的参考价值,可供设计师参考。

部分图纸展示:

QQ截图20200619172204.png

 

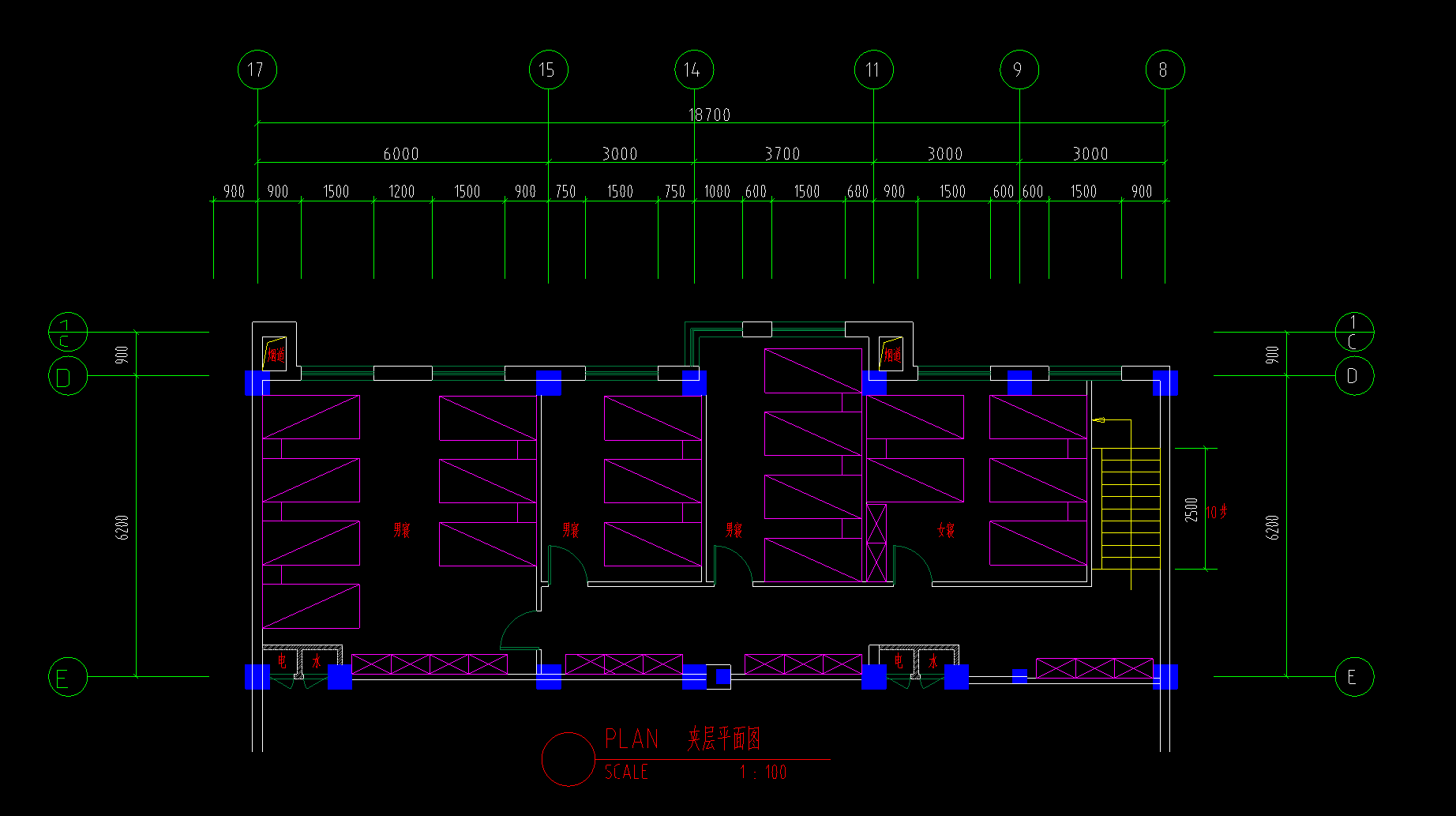
夹层结构示意图

 

QQ截图20200619172213.png

 

夹层平面

 

QQ截图20200619172221.png

 

平面

 

QQ截图20200619172228.png

 

外立面图

 

QQ截图20200619172236.png

 

外立面图

 

QQ截图20200619172242.png

 

下室平面

汽车美容结构图,汽车美容CAD图纸下载

ID:24581
软     件:sketchup 大     小:0.20MB 上 传 时 间:20200619 消 耗 积 分:30
  • 收藏 ()
  • 评论 ()
  • ⚠图纸报错

qianqian 普通会员

关注
  • 户外垃圾桶
  • 户外垃圾桶
  • 户外垃圾桶
SU模型、3D模型、贴图、材质、CAD施工图素材:

su模型,su素材库,3d模型,3d模型库,3d模型下载,3d模型素材,3dmax模型免费下载,cad施工图纸,3d材质贴图,沙发SU模型,椅凳SU模型,柜类SU模型,厨卫SU模型,3D沙发模型,3D陈设饰品,3D柜类模型,3D家装空间,家装CAD图纸,CAD图库,CAD节点详图,橱柜衣柜CAD图纸,CAD施工图,居住建筑效果图,工业建筑效果图,公共建筑效果图

友情链接 热门模型 免费模型