yituLogo
当前的位置:首页 > 室内CAD图纸 > cad > 工装图纸 > 专卖店 > 奔驰4s店建筑图,奔驰汽车专卖店CAD图纸下载

图纸介绍

              空间划分:成套专卖店                                     图纸深度:施工图

              功能类型:汽车专卖店                                     设计风格:现代风格

              图片格式:JPG

资料为:奔驰4s店建筑图

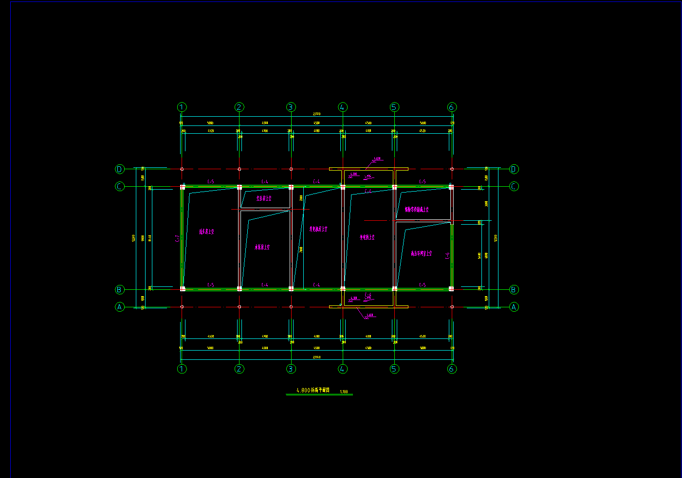
资料内容包括:全套CAD施工图,首层平面图,二层平面图,屋顶平面图,二层平面防火区示意图,手粗平面防火区示意图,轴立面图,剖面图,总平面图,卫生间详图,首层平面节点图,设计说明,图纸目录等,内容详实,图纸中无错漏碰缺。作图规范,具有较高的参考价值,可供设计师参考。

部分图纸展示:

QQ截图20200619110735.png

 

立面图

 

QQ截图20200619110739.png

 

平面

 

QQ截图20200619110745.png

 

平面

 

QQ截图20200619110750.png

 

平面

 

QQ截图20200619110754.png

 

节点图

 

QQ截图20200619110802.png

 

剖面图

奔驰4s店建筑图,奔驰汽车专卖店CAD图纸下载

ID:24525
软     件:sketchup 大     小:1.70MB 上 传 时 间:20200619 消 耗 积 分:30
  • 收藏 ()
  • 评论 ()
  • ⚠图纸报错

qianqian 普通会员

关注
  • 户外垃圾桶
  • 户外垃圾桶
  • 户外垃圾桶
SU模型、3D模型、贴图、材质、CAD施工图素材:

su模型,su素材库,3d模型,3d模型库,3d模型下载,3d模型素材,3dmax模型免费下载,cad施工图纸,3d材质贴图,沙发SU模型,椅凳SU模型,柜类SU模型,厨卫SU模型,3D沙发模型,3D陈设饰品,3D柜类模型,3D家装空间,家装CAD图纸,CAD图库,CAD节点详图,橱柜衣柜CAD图纸,CAD施工图,居住建筑效果图,工业建筑效果图,公共建筑效果图

友情链接 热门模型 免费模型