yituLogo
当前的位置:首页 > 室内CAD图纸 > cad > 家装图纸 > 样板房 > 现代风格cad工程图纸,效果图下载

图纸介绍

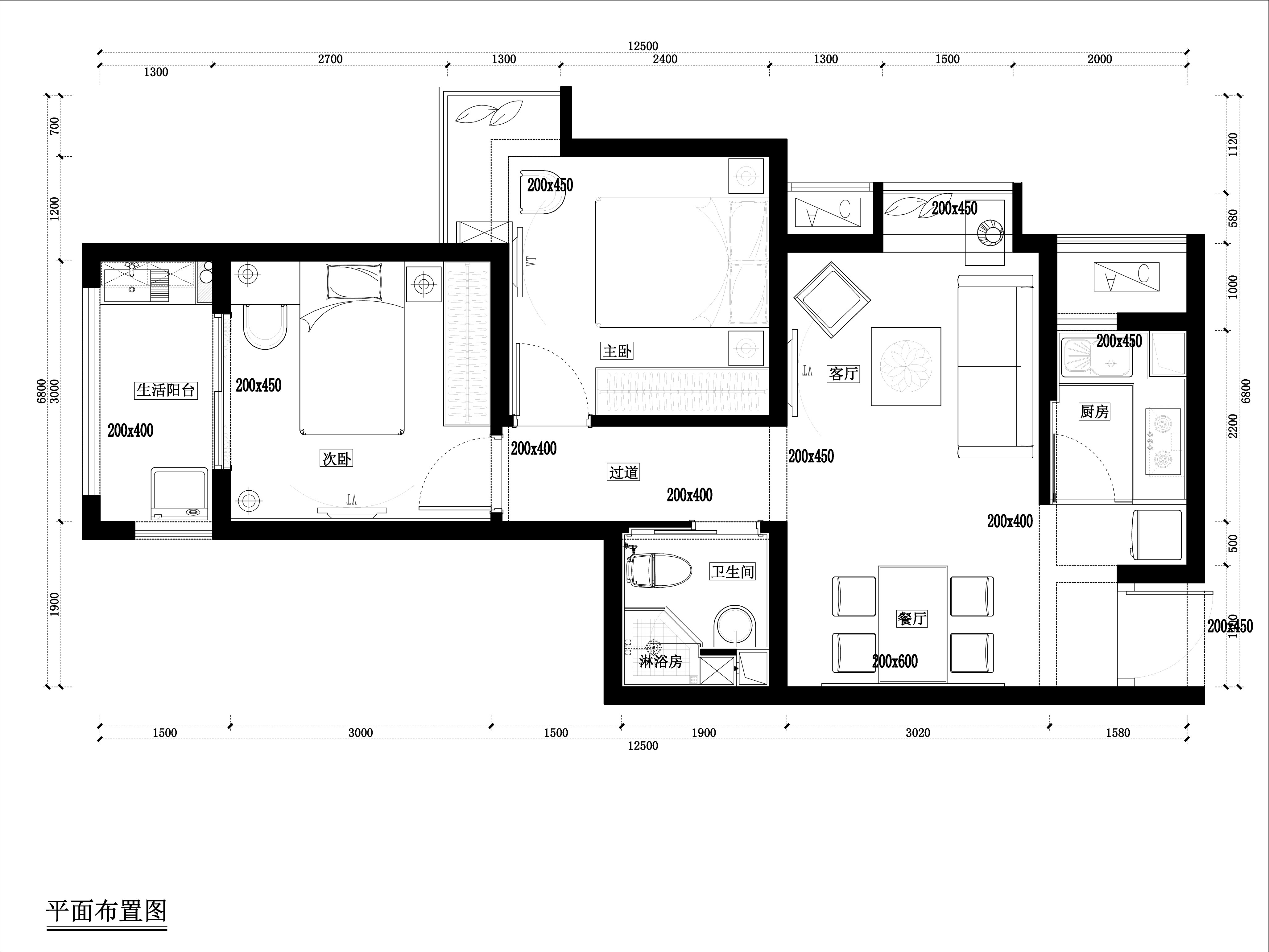
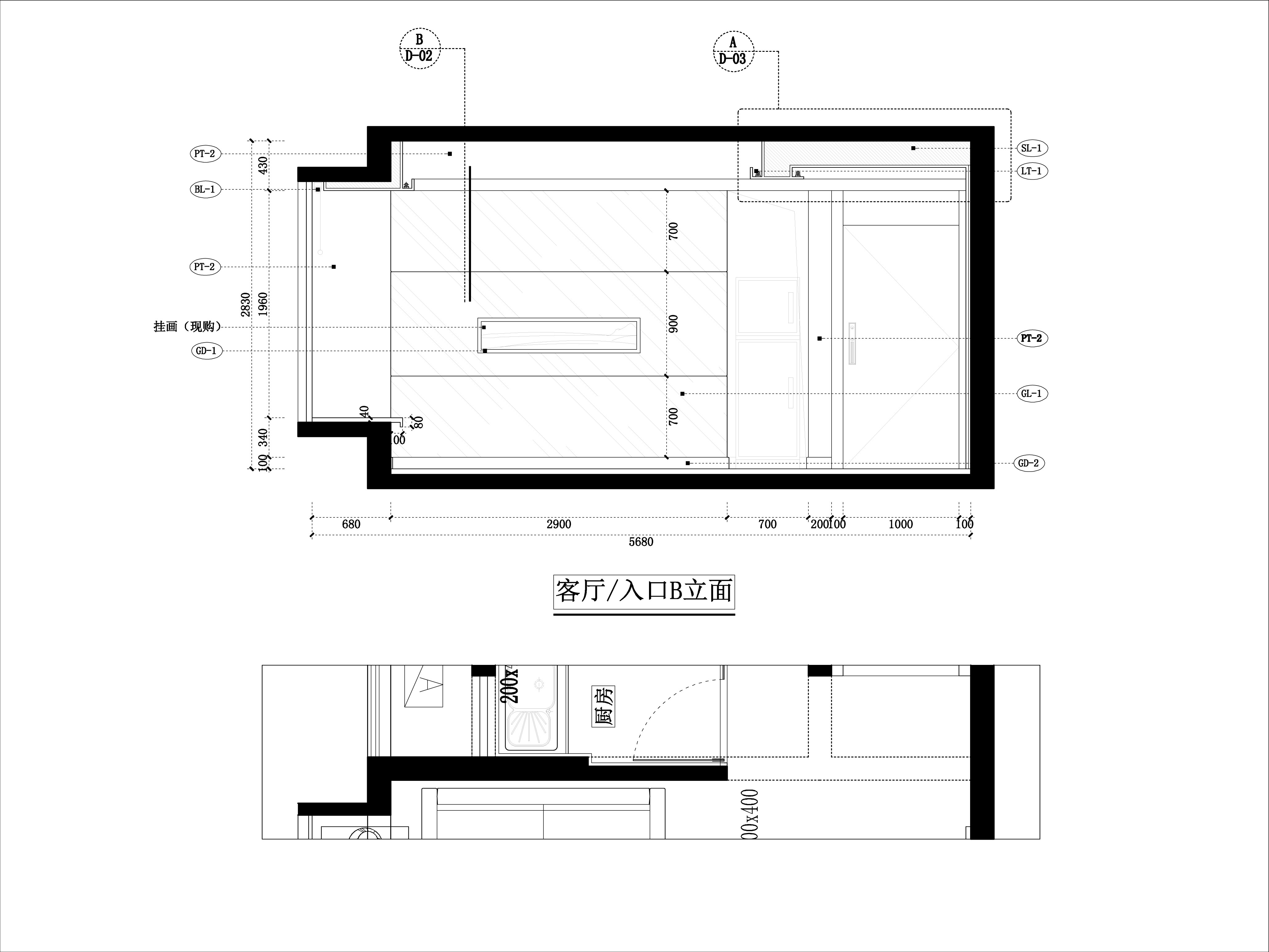
现代风格cad工程图纸,效果图,超详细的样板房CAD施工图全套图纸,CAD室内施工图。易图网为您提供下载服务,好看实用

现代风格cad工程图纸,效果图下载

ID:13408
软     件:sketchup 大     小:13.50MB 上 传 时 间:20190719 消 耗 积 分:30
  • 收藏 ()
  • 评论 ()
  • ⚠图纸报错

zhangjin 普通会员

关注
  • 苏州古典园林怡园su模型,怡园cad建筑模型下载
  • 苏州狮子园建筑模型,古典私家园狮子林模型下载
  • 苏州古典留园建筑模型,苏州古典园林su模型下载
SU模型、3D模型、贴图、材质、CAD施工图素材:

su模型,su素材库,3d模型,3d模型库,3d模型下载,3d模型素材,3dmax模型免费下载,cad施工图纸,3d材质贴图,沙发SU模型,椅凳SU模型,柜类SU模型,厨卫SU模型,3D沙发模型,3D陈设饰品,3D柜类模型,3D家装空间,家装CAD图纸,CAD图库,CAD节点详图,橱柜衣柜CAD图纸,CAD施工图,居住建筑效果图,工业建筑效果图,公共建筑效果图

友情链接 热门模型 免费模型