yituLogo
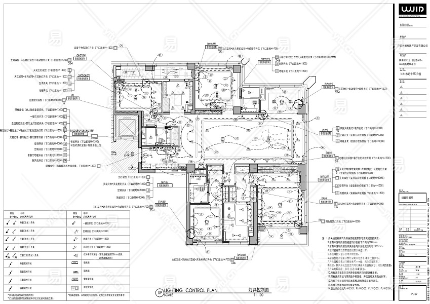
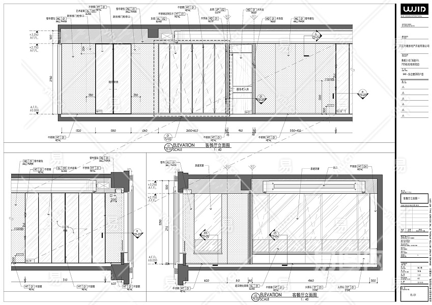
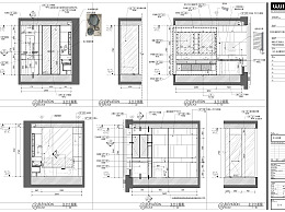
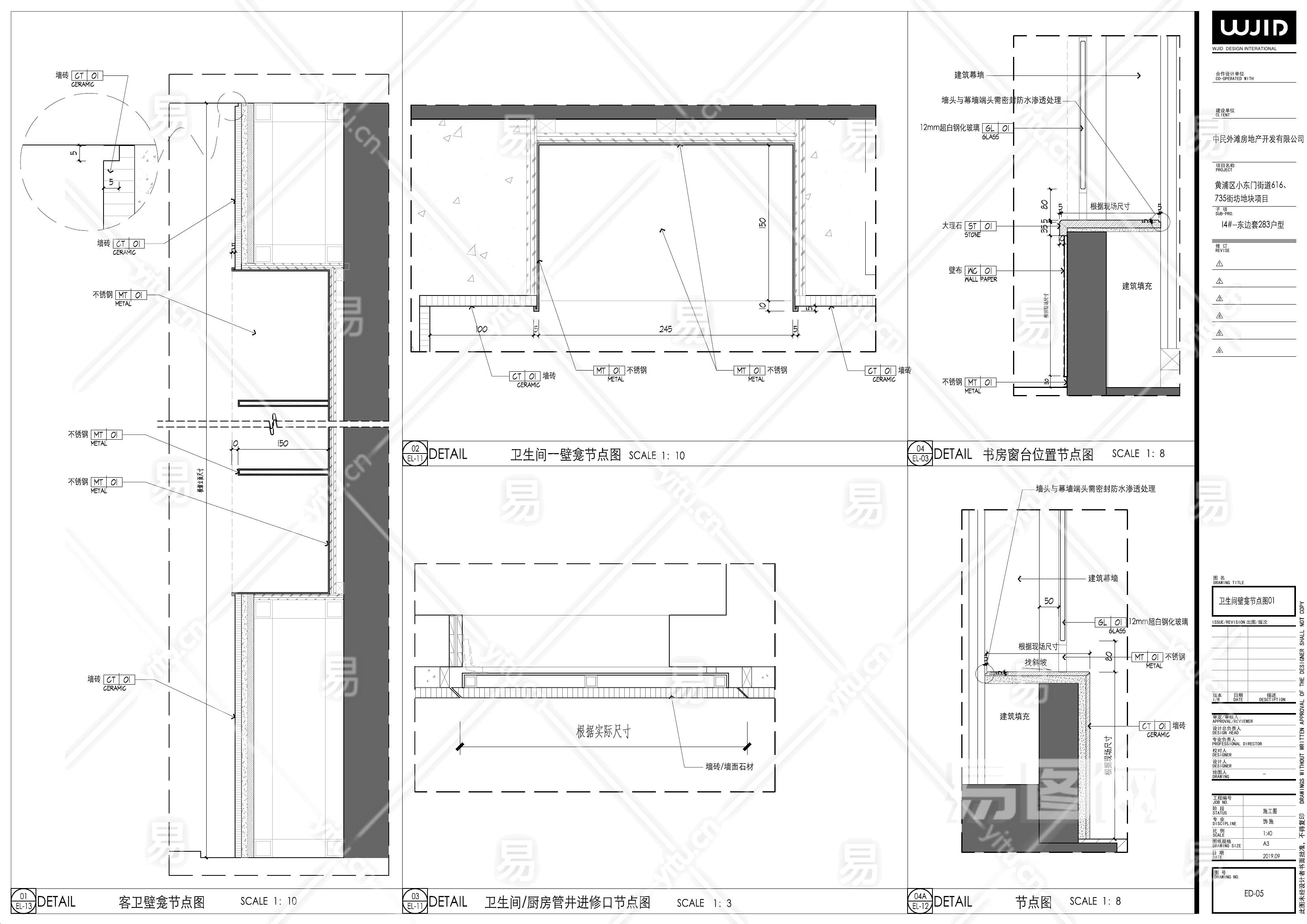
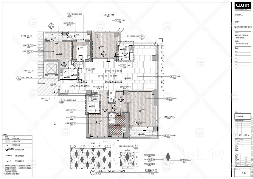
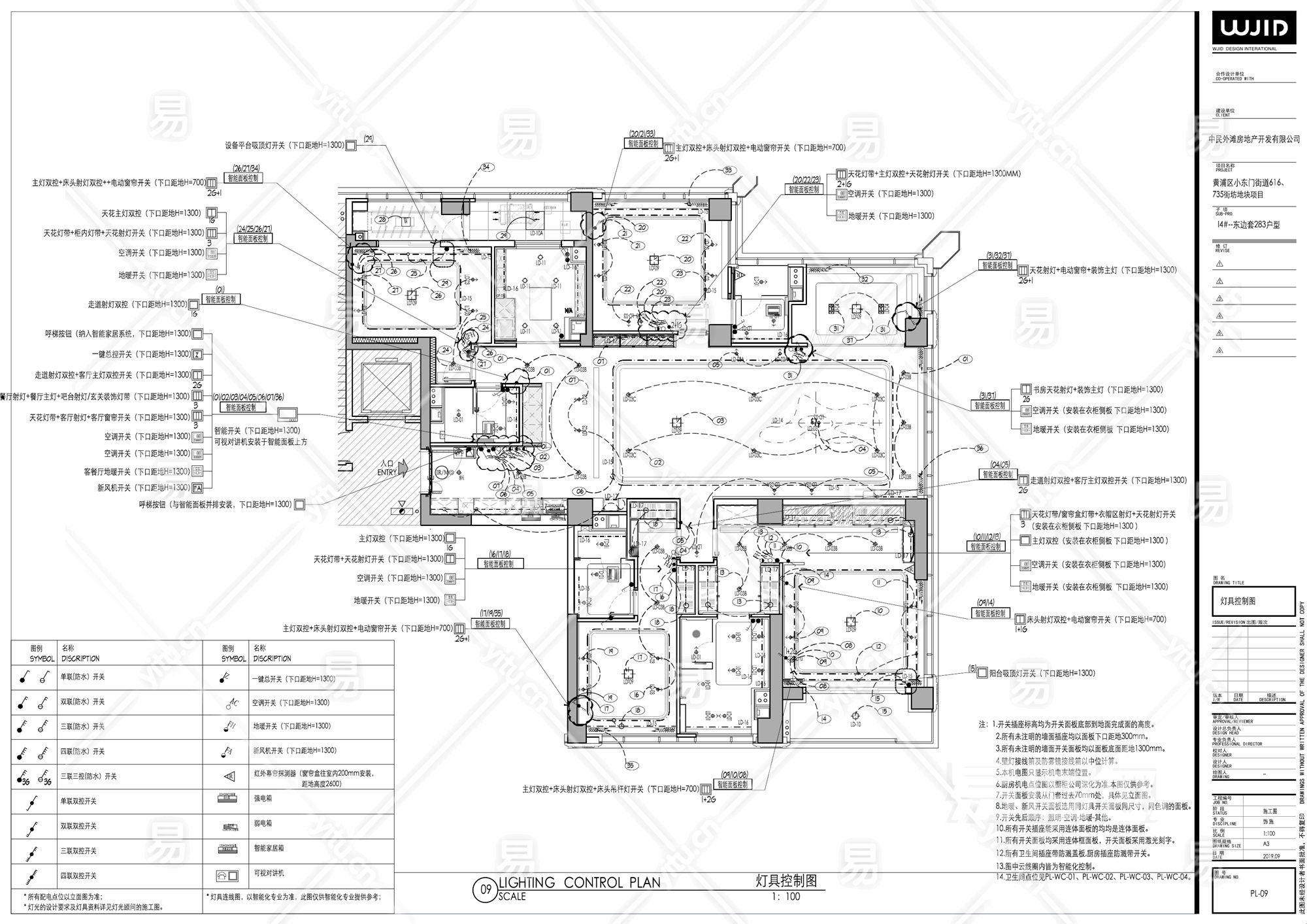
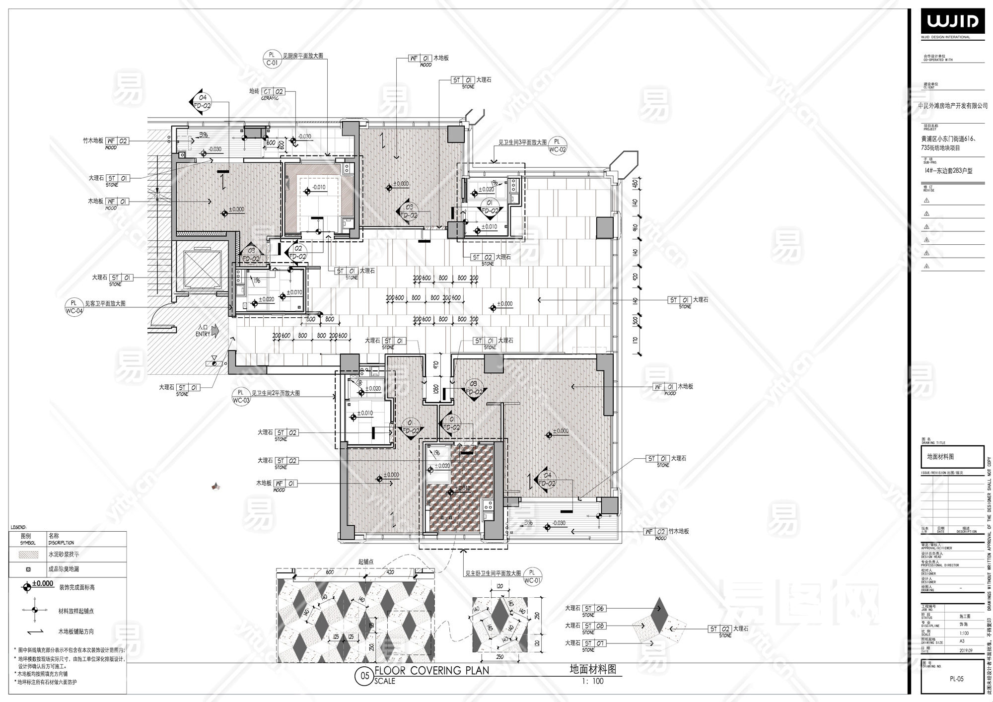
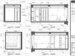
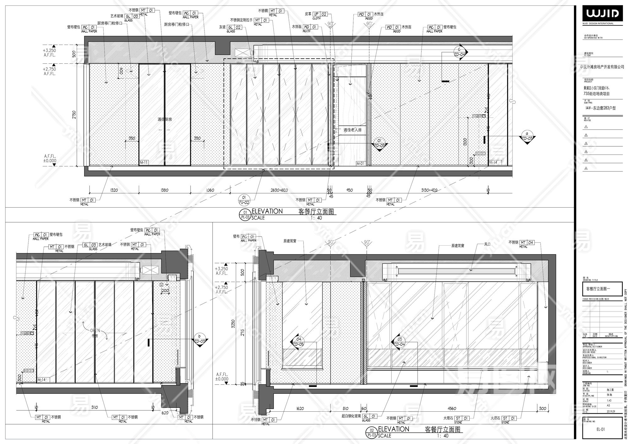
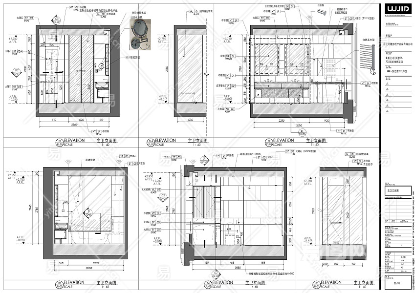
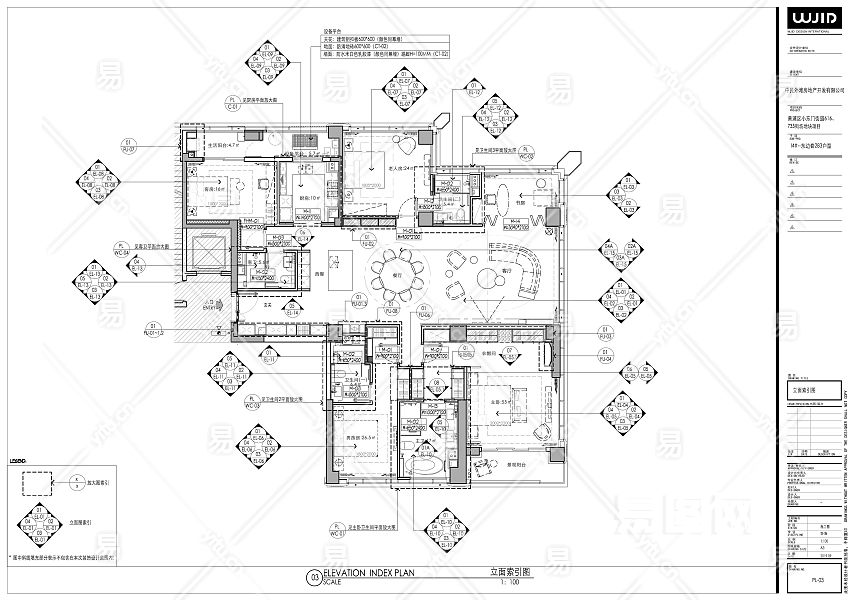
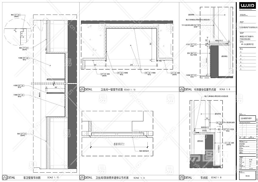
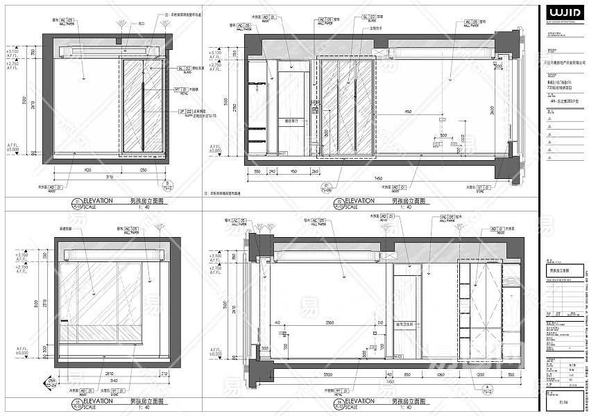
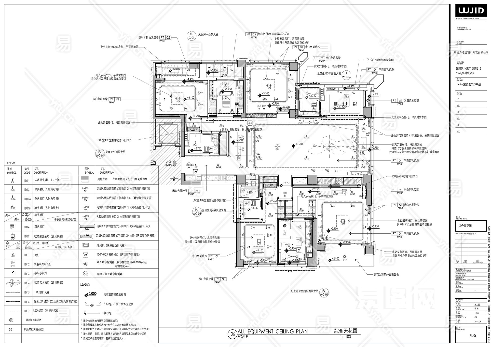
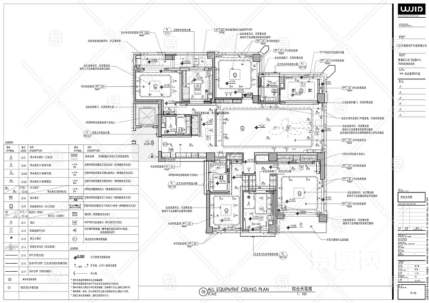
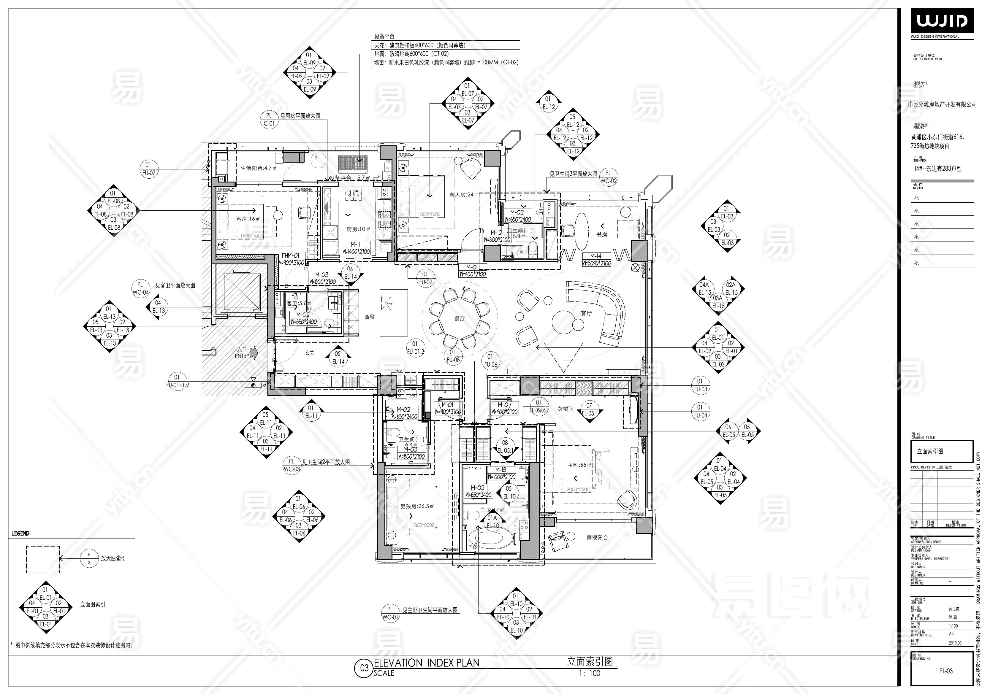
当前的位置:首页 > 室内CAD图纸 > cad > 家装图纸 > 样板房 > 【CAD图纸】上海海珀外滩283m²大平层样板间 效果图+CAD施工图+水电图+官方摄影
SU模型、3D模型、贴图、材质、CAD施工图素材:

su模型,su素材库,3d模型,3d模型库,3d模型下载,3d模型素材,3dmax模型免费下载,cad施工图纸,3d材质贴图,沙发SU模型,椅凳SU模型,柜类SU模型,厨卫SU模型,3D沙发模型,3D陈设饰品,3D柜类模型,3D家装空间,家装CAD图纸,CAD图库,CAD节点详图,橱柜衣柜CAD图纸,CAD施工图,居住建筑效果图,工业建筑效果图,公共建筑效果图

友情链接 热门模型 免费模型