yituLogo
当前的位置:首页 > 室内CAD图纸 > cad > 工装图纸 > 学校培训 > 现代多功能幼儿园cad施工图,幼儿园cad竣工图下载

图纸介绍

 现代多功能幼儿园cad施工图,幼儿园cad竣工图下载幼儿园是小朋友的快乐天,可以帮助孩子健康快乐度过童年时光,不仅学到知识,而且可以从小接触集体生活。幼儿园教育作为整个教育体系基础的基础,是对儿童进行预备教育易图网为您提供下载服务,好看实用。

部分图纸展示:

WG[UGYRH6@F}AXC)0(API}M.png

 

立面图

 

(6YBFM)OG]OH(W99ZU}ICRA.png

 

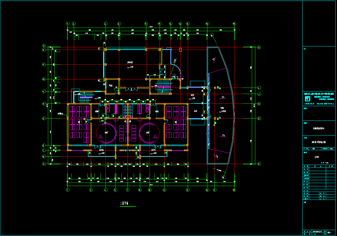
二层平面

 

(ZK95CCM[D8QYJE{4GVA]]6.png

 

剖面图

 

)I$)`@{F_(3V0[1%R_`3ORM.png

 

一层平面

 

SFV4E}3ZA{8`LEI}6JXR1AH.png

三层平面

现代多功能幼儿园cad施工图,幼儿园cad竣工图下载

ID:24108
软     件:sketchup 大     小:0.80MB 上 传 时 间:20200608 消 耗 积 分:30
  • 收藏 ()
  • 评论 ()
  • ⚠图纸报错

husen 普通会员

关注
  • 中式售楼处sketchup模型,销售中心skp模型下载
  • 中式售楼处su模型,销售中心草图大师模型下载
  • 中式历史文化展厅su模型,展厅草图大师模型下载
SU模型、3D模型、贴图、材质、CAD施工图素材:

su模型,su素材库,3d模型,3d模型库,3d模型下载,3d模型素材,3dmax模型免费下载,cad施工图纸,3d材质贴图,沙发SU模型,椅凳SU模型,柜类SU模型,厨卫SU模型,3D沙发模型,3D陈设饰品,3D柜类模型,3D家装空间,家装CAD图纸,CAD图库,CAD节点详图,橱柜衣柜CAD图纸,CAD施工图,居住建筑效果图,工业建筑效果图,公共建筑效果图

友情链接 热门模型 免费模型