yituLogo
当前的位置:首页 > 室内CAD图纸 > cad > 餐饮娱乐 > 休闲娱乐 > 幼儿园儿童乐园土丘攀爬区CAD图纸

图纸介绍

              空间划分:成套休闲娱乐空间                                                                         图纸深度 :施工图

              类型:乐园                                                                                                        图纸格式:DWG

资料为:幼儿园儿童乐园土丘攀区CAD图纸

资料内容包括:全套施工图、立面图、剖面图、剖面图、土丘攀区大样图等。空间设置合理规范,具有较高的参考价值,可作为参考学习的模板,供设计师、师下载参考。

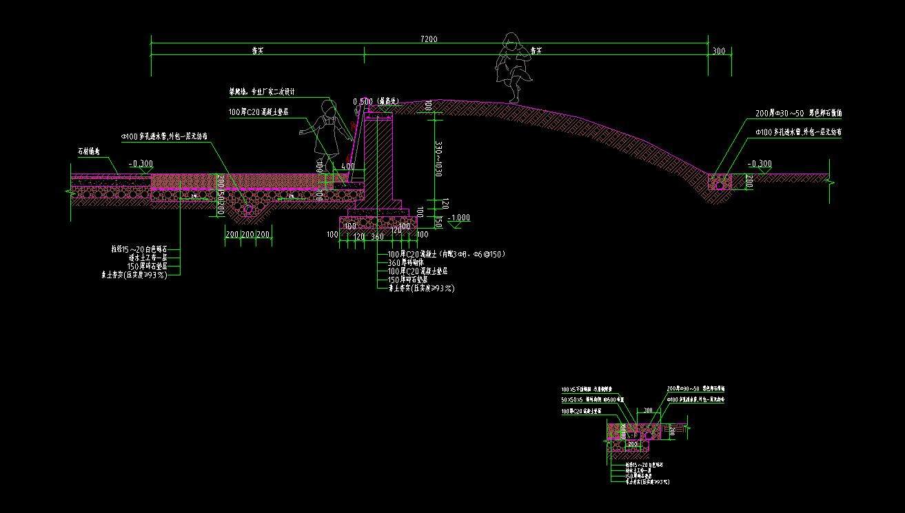
部分图纸展示如下:

立面图、剖面图.jpg

 

立面图、剖面图

 

剖面图.jpg

 

剖面图

 

土丘攀<a href=https://www.yitu.cn/su/7967.html target=_blank class=infotextkey>爬</a>区大样图.jpg

 

土丘攀区大样图

 

缩略图.jpg

 

缩略图

幼儿园儿童乐园土丘攀爬区CAD图纸

ID:94666
软     件:sketchup 大     小:1.40MB 上 传 时 间:20220805 消 耗 积 分:10
  • 收藏 ()
  • 评论 ()
  • ⚠图纸报错

qianqian 普通会员

关注
  • 户外垃圾桶
  • 户外垃圾桶
  • 户外垃圾桶
SU模型、3D模型、贴图、材质、CAD施工图素材:

su模型,su素材库,3d模型,3d模型库,3d模型下载,3d模型素材,3dmax模型免费下载,cad施工图纸,3d材质贴图,沙发SU模型,椅凳SU模型,柜类SU模型,厨卫SU模型,3D沙发模型,3D陈设饰品,3D柜类模型,3D家装空间,家装CAD图纸,CAD图库,CAD节点详图,橱柜衣柜CAD图纸,CAD施工图,居住建筑效果图,工业建筑效果图,公共建筑效果图

友情链接 热门模型 免费模型