yituLogo
当前的位置:首页 > 室内CAD图纸 > cad > 餐饮娱乐 > 休闲娱乐 > 茶楼洗浴中心CAD装修图,茶楼洗浴中心CAD装修图下载

图纸介绍

         空间划分:成套洗浴中心                    图纸深度:施工图

        功能类型:洗浴中心                            设计风格:现代风格

        图片格式:JPG

     本资料为:洗浴中心CAD施工图,内附详细CAD施工图

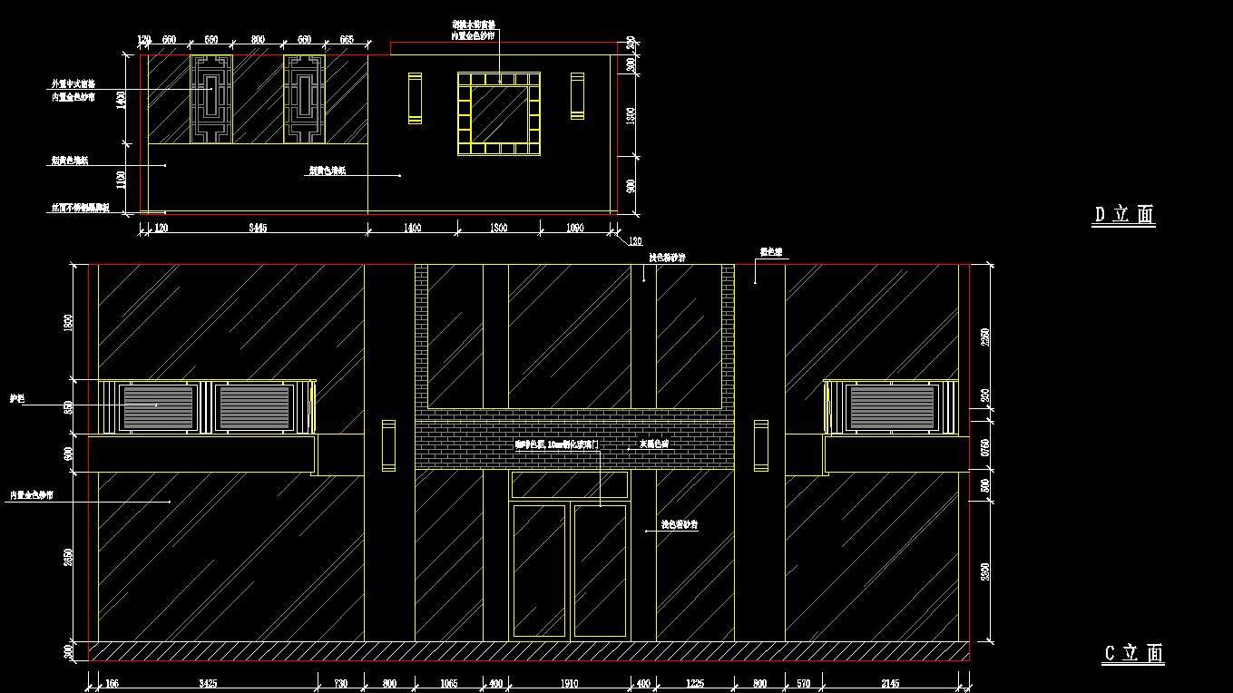
     资料内容包括:包间立面图图纸、包间剖面图图纸、二层给平面布置图图纸、二层排平面布置图图纸、护栏立面图图纸栏杆立面图图纸、一层电气平面布置图图纸装饰架立面图图纸装饰架剖面图图纸走廊立面图图纸走廊剖面图图纸平面布置总图图纸大厅立面详图图纸、洗手台大样图纸等等。图纸中无错漏碰缺,具有较高的参考价值,可供下载参考。

      部分图纸展示如下:

二层排<a href=https://www.yitu.cn/su/5628.html target=_blank class=infotextkey><a href=https://yitu.cn/su/5628.html target=_blank class=infotextkey>水</a></a><a href=https://www.yitu.cn/su/7392.html target=_blank class=infotextkey>平面</a>布置图.jpg

 

二层排详图

 

护栏立面.jpg

 

护栏立面图

 

<a href=https://www.yitu.cn/sketchup/louti/index.html target=_blank class=infotextkey><a href=https://www.yitu.cn/su/6782.html target=_blank class=infotextkey><a href=https://www.yitu.cn/su/8159.html target=_blank class=infotextkey>楼</a>梯</a></a><a href=https://www.yitu.cn/su/langan.html target=_blank class=infotextkey><a href=https://www.yitu.cn/sketchup/langan/index.html target=_blank class=infotextkey><a href=https://www.yitu.cn/su/6781.html target=_blank class=infotextkey><a href=https://yitu.cn/su/6781.html target=_blank class=infotextkey>栏杆</a></a></a></a>立面.jpg

 

栏杆立面图

 

一层电气<a href=https://www.yitu.cn/su/7392.html target=_blank class=infotextkey>平面</a>布置图.jpg

 

一层电气布置图

 

<a href=https://www.yitu.cn/su/7941.html target=_blank class=infotextkey>装饰</a>架立面剖面.jpg

 

装饰架详图

 

<a href=https://www.yitu.cn/sketchup/diantizoulang/index.html target=_blank class=infotextkey>走廊</a>里面剖面.jpg

 

走廊详图

 

 

茶楼洗浴中心CAD装修图,茶楼洗浴中心CAD装修图下载

ID:24408
软     件:sketchup 大     小:10.90MB 上 传 时 间:20200618 消 耗 积 分:30
  • 收藏 ()
  • 评论 ()
  • ⚠图纸报错

huangyuzhen 普通会员

关注
  • 现代风格别墅su模型,别墅sketchup模型下载
  • 现代简约别墅草图大师模型,别墅sketchup模型下载
  • 现代简约别墅su模型,别墅sketchup模型下载
SU模型、3D模型、贴图、材质、CAD施工图素材:

su模型,su素材库,3d模型,3d模型库,3d模型下载,3d模型素材,3dmax模型免费下载,cad施工图纸,3d材质贴图,沙发SU模型,椅凳SU模型,柜类SU模型,厨卫SU模型,3D沙发模型,3D陈设饰品,3D柜类模型,3D家装空间,家装CAD图纸,CAD图库,CAD节点详图,橱柜衣柜CAD图纸,CAD施工图,居住建筑效果图,工业建筑效果图,公共建筑效果图

友情链接 热门模型 免费模型