yituLogo
当前的位置:首页 > 室内CAD图纸 > cad > CAD图库 > 图库集 > 办公楼水暖消防施工图CAD图纸

图纸介绍

资料内容包括:全套施工图、消防图例大全基本符号表示消防设施类型,常有的基本符号有消防工程协助符号、消防工程灭火器符号、消防工程固定灭火器系统符号等。空间设置合理规范,具有较高的参考价值,可作为参考学习的模板,供设计师、建筑师下载参考。

部分图纸展示如下:

<a href=https://www.yitu.cn/su/7872.html target=_blank class=infotextkey>地</a>热盘<a href=https://www.yitu.cn/su/7392.html target=_blank class=infotextkey>平面</a>图.jpg

 

热盘平面

 

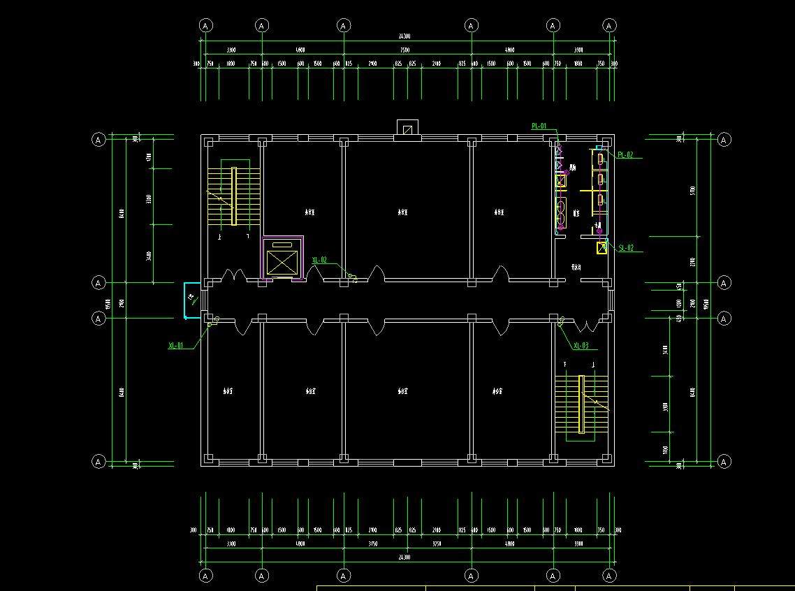
给排<a href=https://www.yitu.cn/su/5628.html target=_blank class=infotextkey><a href=https://yitu.cn/su/5628.html target=_blank class=infotextkey>水</a></a>消防图.jpg

 

给排消防图

 

排<a href=https://www.yitu.cn/su/5628.html target=_blank class=infotextkey><a href=https://yitu.cn/su/5628.html target=_blank class=infotextkey>水</a></a>消防图.jpg

 

消防图

 

<a href=https://www.yitu.cn/su/7392.html target=_blank class=infotextkey>平面</a>图.jpg

 

平面

 

消防<a href=https://www.yitu.cn/su/7392.html target=_blank class=infotextkey>平面</a>图.jpg

 

消防平面

 

消防<a href=https://www.yitu.cn/su/7392.html target=_blank class=infotextkey>平面</a>图2.jpg

 

消防平面图2

办公楼水暖消防施工图CAD图纸

ID:93933
软     件:sketchup 大     小:2.10MB 上 传 时 间:20220718 消 耗 积 分:10
  • 收藏 ()
  • 评论 ()
  • ⚠图纸报错

qianqian 普通会员

关注
  • 户外垃圾桶
  • 户外垃圾桶
  • 户外垃圾桶
SU模型、3D模型、贴图、材质、CAD施工图素材:

su模型,su素材库,3d模型,3d模型库,3d模型下载,3d模型素材,3dmax模型免费下载,cad施工图纸,3d材质贴图,沙发SU模型,椅凳SU模型,柜类SU模型,厨卫SU模型,3D沙发模型,3D陈设饰品,3D柜类模型,3D家装空间,家装CAD图纸,CAD图库,CAD节点详图,橱柜衣柜CAD图纸,CAD施工图,居住建筑效果图,工业建筑效果图,公共建筑效果图

友情链接 热门模型 免费模型