yituLogo
当前的位置:首页 > 室内CAD图纸 > cad > 工装图纸 > 酒店宾馆 > 新锦城酒店CAD施工图,酒店CAD建筑图纸下载

图纸介绍

 新锦城酒店CAD施工图,酒店CAD建筑图纸下载内容简介:图纸含有酒店立面图、天布置图、总平面布置图、开关布置图、内容详实,具有较高的参考价值。

部分图纸展示:

QQ截图20191204144153.png

 

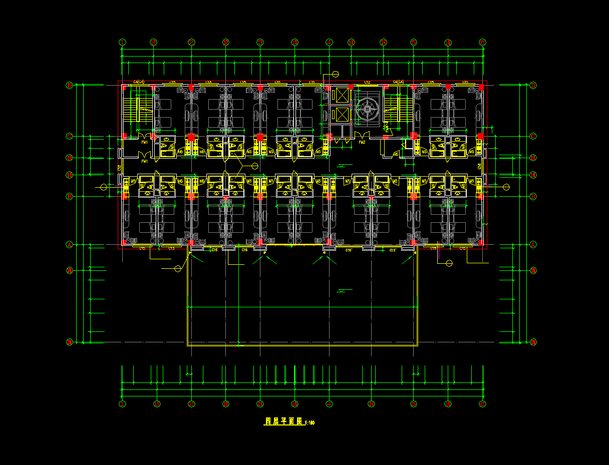
5-6层平面

 

QQ截图20191204144210.png

 

3-3剖面图

 

QQ截图20191204144223.png

 

轴立面图

 

QQ截图20191204144234.png

 

2-2剖面图

 

QQ截图20191204144255.png

 

梯顶面图

 

QQ截图20191204144309.png

 

7-9层平面

 

QQ截图20191204144324.png

 

十层平面

 

 

新锦城酒店CAD施工图,酒店CAD建筑图纸下载

ID:20882
软     件:sketchup 大     小:8.90MB 上 传 时 间:20191204 消 耗 积 分:30
  • 收藏 ()
  • 评论 ()
  • ⚠图纸报错

hufeng 普通会员

关注
  • 现代3D人物草图大师模型,人物SKB文件下载
  • 现代3D人物草图大师模型,人物SKB文件下载
  • 现代3D人物草图大师模型,人物SKB文件下载
SU模型、3D模型、贴图、材质、CAD施工图素材:

su模型,su素材库,3d模型,3d模型库,3d模型下载,3d模型素材,3dmax模型免费下载,cad施工图纸,3d材质贴图,沙发SU模型,椅凳SU模型,柜类SU模型,厨卫SU模型,3D沙发模型,3D陈设饰品,3D柜类模型,3D家装空间,家装CAD图纸,CAD图库,CAD节点详图,橱柜衣柜CAD图纸,CAD施工图,居住建筑效果图,工业建筑效果图,公共建筑效果图

友情链接 热门模型 免费模型