yituLogo
当前的位置:首页 > 室内CAD图纸 > cad > 工装图纸 > 酒店宾馆 > 南京某时尚主题酒店室内CAD装修设计图,酒店CAD建筑图纸下载

图纸介绍

 南京某时尚主题酒店室内CAD装修设计图,酒店CAD建筑图纸下载内容简介:图纸含有平面布置图、餐厅平面布置图、立面图等,内容详实,具有较高的参考价值。

部分图纸展示:

二层宴会包间<a href=https://www.yitu.cn/su/7392.html target=_blank class=infotextkey>平面</a>布置图.png

平面布置图

二层樱<a href=https://www.yitu.cn/sketchup/huayi/index.html target=_blank class=infotextkey>花</a><a href=https://www.yitu.cn/sketchup/canting/index.html target=_blank class=infotextkey><a href=https://www.yitu.cn/su/7825.html target=_blank class=infotextkey>餐厅</a></a><a href=https://www.yitu.cn/su/7392.html target=_blank class=infotextkey>平面</a>图.png

餐厅平面

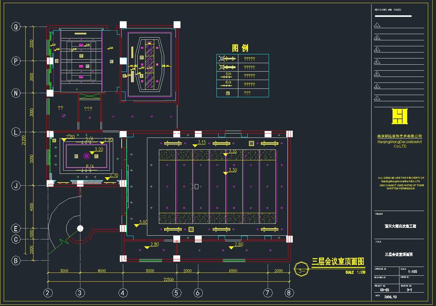
三层<a href=https://www.yitu.cn/sketchup/huiyishi/index.html target=_blank class=infotextkey>会议室</a><a href=https://www.yitu.cn/su/7392.html target=_blank class=infotextkey>平面</a>布置方案.png

会议室平面布置图

一层<a href=https://www.yitu.cn/su/7043.html target=_blank class=infotextkey>服务台</a><a href=https://www.yitu.cn/su/7392.html target=_blank class=infotextkey>平面</a>图.png

服务台平面

一层<a href=https://www.yitu.cn/sketchup/kafeiting/index.html target=_blank class=infotextkey><a href=https://www.yitu.cn/su/7923.html target=_blank class=infotextkey>咖啡厅</a></a>大样图.png

咖啡厅剖面图

一层<a href=https://www.yitu.cn/sketchup/kafeiting/index.html target=_blank class=infotextkey><a href=https://www.yitu.cn/su/7923.html target=_blank class=infotextkey>咖啡厅</a></a><a href=https://www.yitu.cn/su/7392.html target=_blank class=infotextkey>平面</a>图.png

咖啡厅平面

一层门厅详图.png

门厅平面

紫荆厅包间立面图.png

 

立面图

南京某时尚主题酒店室内CAD装修设计图,酒店CAD建筑图纸下载

ID:20260
软     件:sketchup 大     小:52.90MB 上 传 时 间:20191127 消 耗 积 分:30
  • 收藏 ()
  • 评论 ()
  • ⚠图纸报错

qianqian 普通会员

关注
  • 户外垃圾桶
  • 户外垃圾桶
  • 户外垃圾桶
SU模型、3D模型、贴图、材质、CAD施工图素材:

su模型,su素材库,3d模型,3d模型库,3d模型下载,3d模型素材,3dmax模型免费下载,cad施工图纸,3d材质贴图,沙发SU模型,椅凳SU模型,柜类SU模型,厨卫SU模型,3D沙发模型,3D陈设饰品,3D柜类模型,3D家装空间,家装CAD图纸,CAD图库,CAD节点详图,橱柜衣柜CAD图纸,CAD施工图,居住建筑效果图,工业建筑效果图,公共建筑效果图

友情链接 热门模型 免费模型