yituLogo
当前的位置:首页 > 室内CAD图纸 > cad > 节点详图 > 节点大样 > 12套室内楼梯装修节点详图

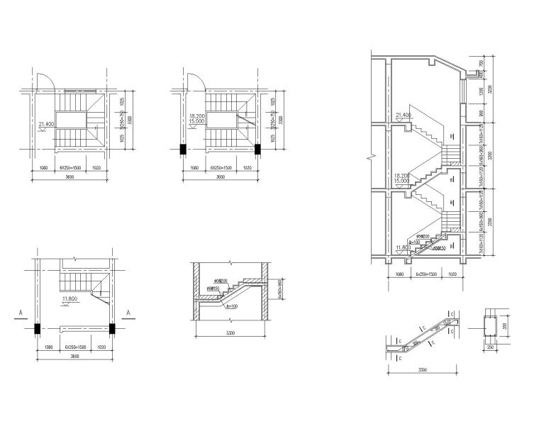
图纸介绍

 文件格式:zip                                  文件大小:7.65MB

设计类别:施工图                             貌:绿

设计风格:现代风格                        图纸格式:JPG

内容简介

12套室内梯装修节点详图。采用现代的设计风格,对梯节点进行初步设计,加强基础设施建设,对景观细部进行设计。对其进行分类设计,汇集信息使室内设计更多样化。促进梯装修节点完善。

 

<a href=https://www.yitu.cn/sketchup/louti/index.html target=_blank class=infotextkey><a href=https://www.yitu.cn/su/6782.html target=_blank class=infotextkey><a href=https://www.yitu.cn/su/8159.html target=_blank class=infotextkey>楼</a>梯</a></a>大样图1

 

梯大样图

 

多种<a href=https://www.yitu.cn/sketchup/louti/index.html target=_blank class=infotextkey><a href=https://www.yitu.cn/su/6782.html target=_blank class=infotextkey><a href=https://www.yitu.cn/su/8159.html target=_blank class=infotextkey>楼</a>梯</a></a>大样图1

 

多种梯大样图1

 

多种<a href=https://www.yitu.cn/sketchup/louti/index.html target=_blank class=infotextkey><a href=https://www.yitu.cn/su/6782.html target=_blank class=infotextkey><a href=https://www.yitu.cn/su/8159.html target=_blank class=infotextkey>楼</a>梯</a></a>大样图2

 

多种梯大样图2

 

多种<a href=https://www.yitu.cn/sketchup/louti/index.html target=_blank class=infotextkey><a href=https://www.yitu.cn/su/6782.html target=_blank class=infotextkey><a href=https://www.yitu.cn/su/8159.html target=_blank class=infotextkey>楼</a>梯</a></a>大样图3

 

多种梯大样图3

 

多种<a href=https://www.yitu.cn/sketchup/louti/index.html target=_blank class=infotextkey><a href=https://www.yitu.cn/su/6782.html target=_blank class=infotextkey><a href=https://www.yitu.cn/su/8159.html target=_blank class=infotextkey>楼</a>梯</a></a>大样图4

 

多种梯大样图4

12套室内楼梯装修节点详图

ID:16140
软     件:sketchup 大     小:7.60MB 上 传 时 间:20191026 消 耗 积 分:30
  • 收藏 ()
  • 评论 ()
  • ⚠图纸报错

strawberry 普通会员

UI社UI社UI社UI社UI社UI社UI社UI社UI社UI社UI社UI社UI社
关注
SU模型、3D模型、贴图、材质、CAD施工图素材:

su模型,su素材库,3d模型,3d模型库,3d模型下载,3d模型素材,3dmax模型免费下载,cad施工图纸,3d材质贴图,沙发SU模型,椅凳SU模型,柜类SU模型,厨卫SU模型,3D沙发模型,3D陈设饰品,3D柜类模型,3D家装空间,家装CAD图纸,CAD图库,CAD节点详图,橱柜衣柜CAD图纸,CAD施工图,居住建筑效果图,工业建筑效果图,公共建筑效果图

友情链接 热门模型 免费模型