yituLogo
当前的位置:首页 > 室内CAD图纸 > cad > 建筑方案设计 > 其它建筑图纸 > 商业街幕墙悬吊雨棚平立面CAD施工图,CAD施工图纸下载

图纸介绍

 资料内容包含:包含实效果图,施工图(专柜平面布置图,立面图,节点大样图),家具详图,实景效果图等。有较高的实用参考价值。

部分图纸展示:

QQ截图20191216090223.png

 

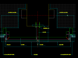
商业街幕墙,悬吊雨棚平立面CAD施工图

 

QQ截图20191216090238.png

 

商业街幕墙,悬吊雨棚平立面CAD施工图

 

QQ截图20191216090337.png

 

商业街幕墙,悬吊雨棚平立面CAD施工图

 

QQ截图20191216090410.png

 

商业街幕墙,悬吊雨棚平立面CAD施工图

 

QQ截图20191216090445.pngQQ截图20191216090445.png

 

商业街幕墙,悬吊雨棚平立面CAD施工图

 

QQ截图20191216090500.png

 

商业街幕墙,悬吊雨棚平立面CAD施工图

商业街幕墙悬吊雨棚平立面CAD施工图,CAD施工图纸下载

ID:21508
软     件:sketchup 大     小:8.90MB 上 传 时 间:20191216 消 耗 积 分:30
  • 收藏 ()
  • 评论 ()
  • ⚠图纸报错

hufeng 普通会员

关注
  • 现代3D人物草图大师模型,人物SKB文件下载
  • 现代3D人物草图大师模型,人物SKB文件下载
  • 现代3D人物草图大师模型,人物SKB文件下载
SU模型、3D模型、贴图、材质、CAD施工图素材:

su模型,su素材库,3d模型,3d模型库,3d模型下载,3d模型素材,3dmax模型免费下载,cad施工图纸,3d材质贴图,沙发SU模型,椅凳SU模型,柜类SU模型,厨卫SU模型,3D沙发模型,3D陈设饰品,3D柜类模型,3D家装空间,家装CAD图纸,CAD图库,CAD节点详图,橱柜衣柜CAD图纸,CAD施工图,居住建筑效果图,工业建筑效果图,公共建筑效果图

友情链接 热门模型 免费模型