yituLogo
当前的位置:首页 > 室内CAD图纸 > cad > 家装图纸 > 家居 > 溪谷别墅样板间CAD施工图,别墅样板间施工图纸下载

图纸介绍

溪谷别墅样板间CAD施工图,别墅样板间施工图纸下载资料内容包含:实景拍摄、CAD施工图(图纸目录,施工图设计说明、样板间平面图,立面图,节点大样等)施工说明,材料表等。

部分图纸展示:

二层主<a href=https://www.yitu.cn/sketchup/woshi/index.html target=_blank class=infotextkey><a href=https://www.yitu.cn/su/7632.html target=_blank class=infotextkey>卧室</a></a>立面图.png

 

立面图

 

一层<a href=https://www.yitu.cn/sketchup/canting/index.html target=_blank class=infotextkey><a href=https://www.yitu.cn/su/7825.html target=_blank class=infotextkey>餐厅</a></a>立面图.png

 

立面图

 

一层<a href=https://www.yitu.cn/sketchup/keting/index.html target=_blank class=infotextkey><a href=https://www.yitu.cn/su/6863.html target=_blank class=infotextkey>客厅</a></a>立面图.png

 

立面图

 

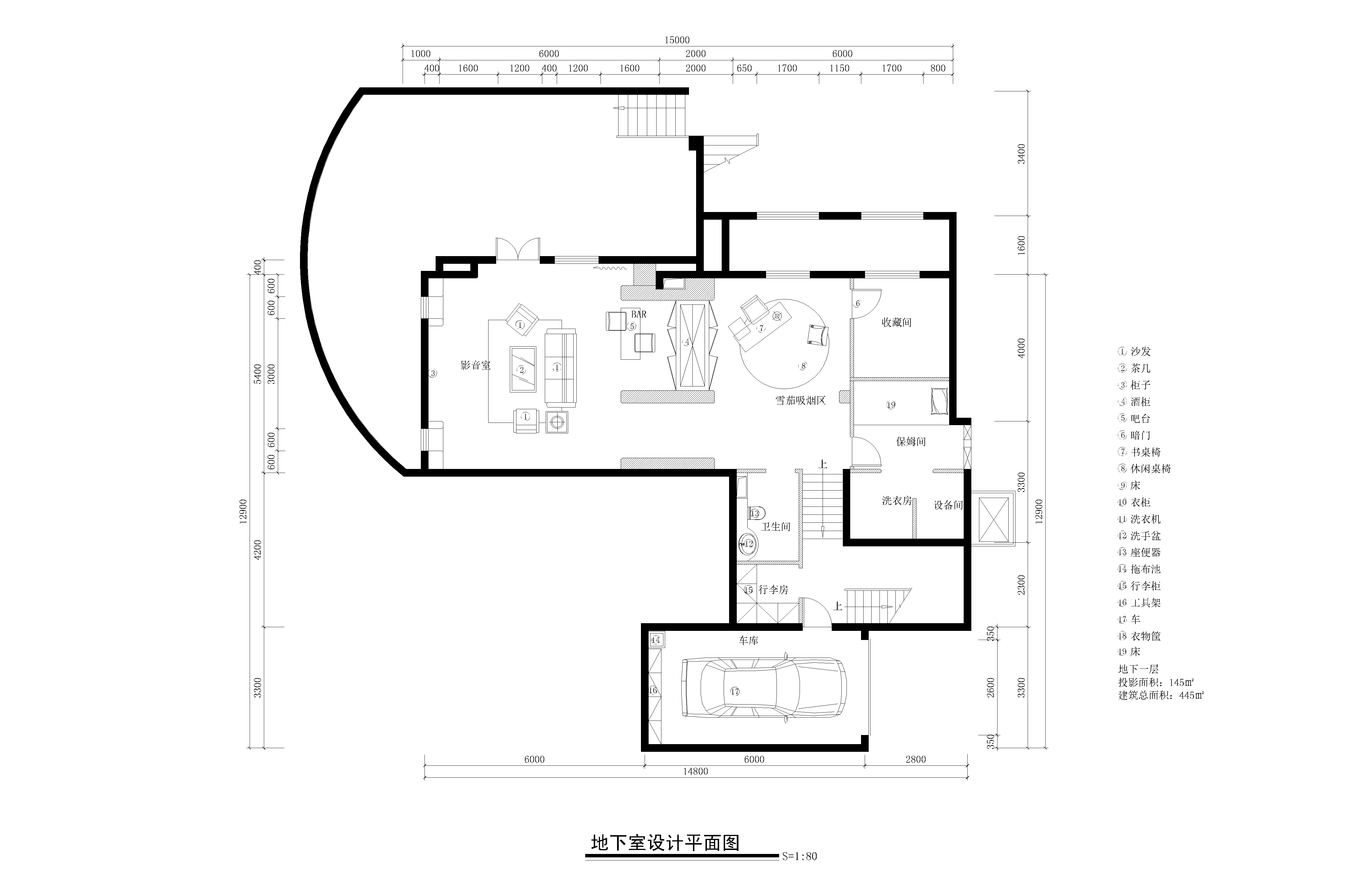
一层<a href=https://www.yitu.cn/su/7392.html target=_blank class=infotextkey>平面</a>布置图.png

 

平面布置图

溪谷别墅样板间CAD施工图,别墅样板间施工图纸下载

ID:22648
软     件:sketchup 大     小:29.00MB 上 传 时 间:20191231 消 耗 积 分:30
  • 收藏 ()
  • 评论 ()
  • ⚠图纸报错

hufeng 普通会员

关注
  • 现代3D人物草图大师模型,人物SKB文件下载
  • 现代3D人物草图大师模型,人物SKB文件下载
  • 现代3D人物草图大师模型,人物SKB文件下载
SU模型、3D模型、贴图、材质、CAD施工图素材:

su模型,su素材库,3d模型,3d模型库,3d模型下载,3d模型素材,3dmax模型免费下载,cad施工图纸,3d材质贴图,沙发SU模型,椅凳SU模型,柜类SU模型,厨卫SU模型,3D沙发模型,3D陈设饰品,3D柜类模型,3D家装空间,家装CAD图纸,CAD图库,CAD节点详图,橱柜衣柜CAD图纸,CAD施工图,居住建筑效果图,工业建筑效果图,公共建筑效果图

友情链接 热门模型 免费模型