yituLogo
当前的位置:首页 > 室内CAD图纸 > cad > 家装图纸 > 家居 > 东晖名苑CAD施工图套图,CAD建筑图纸下载

图纸介绍

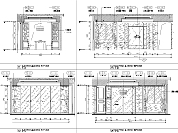
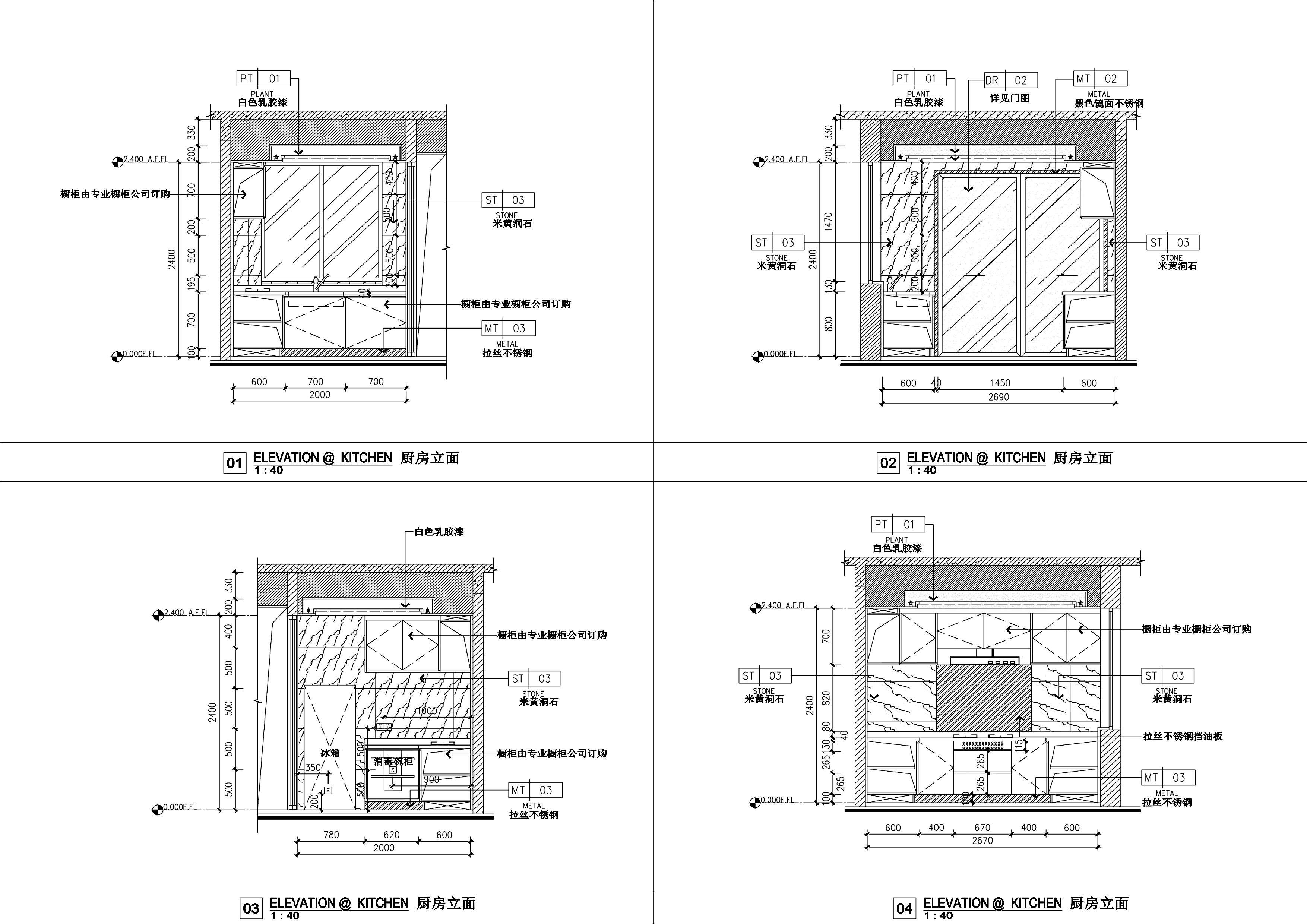
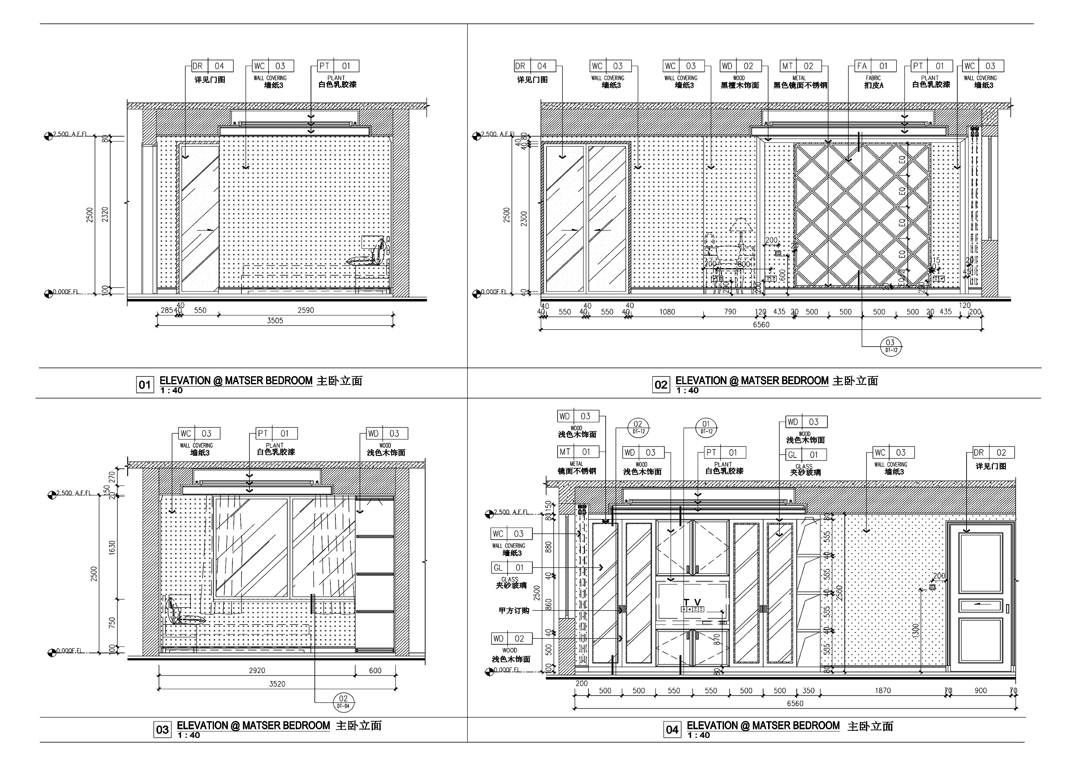
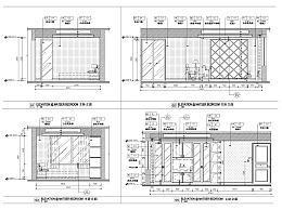
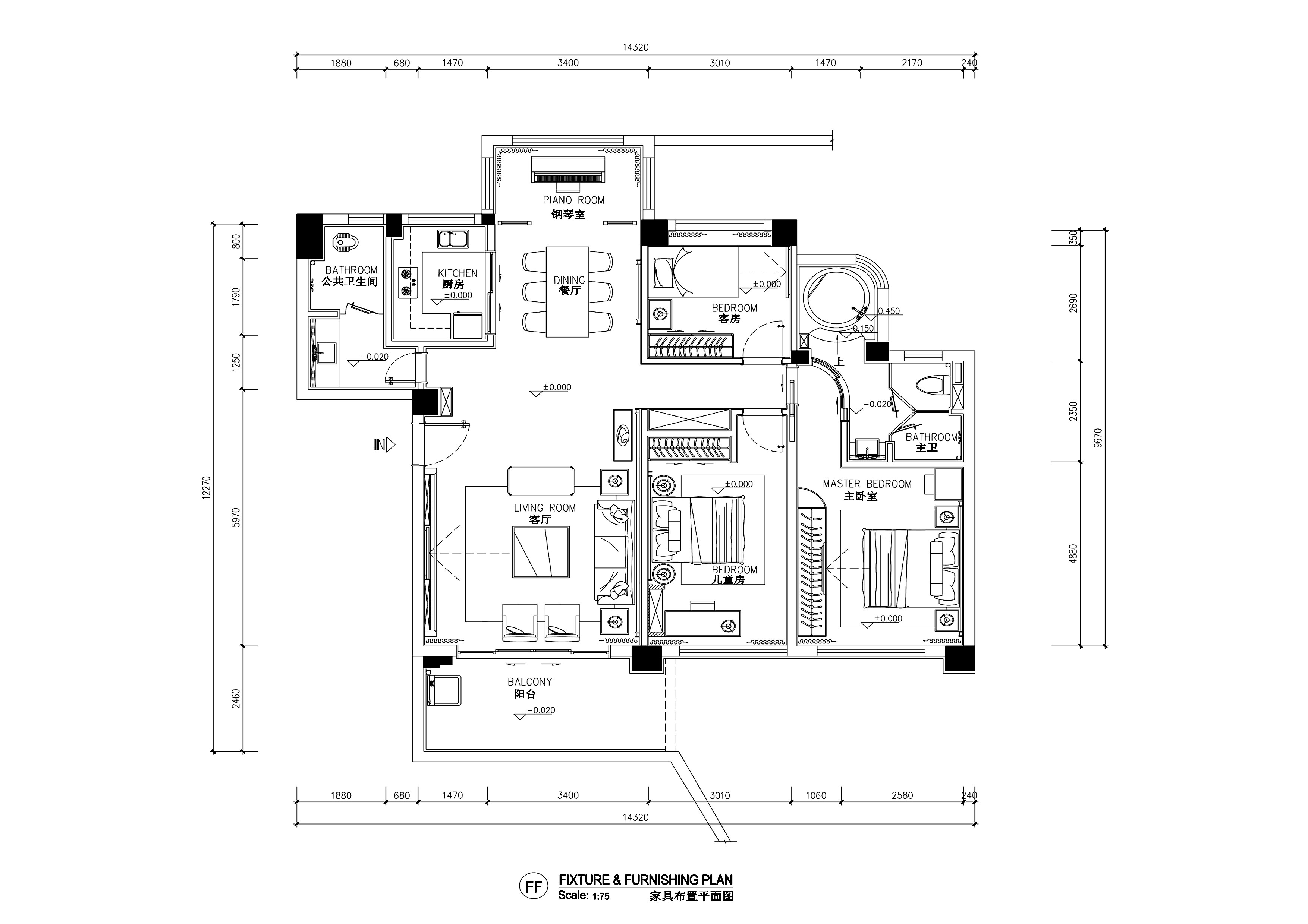
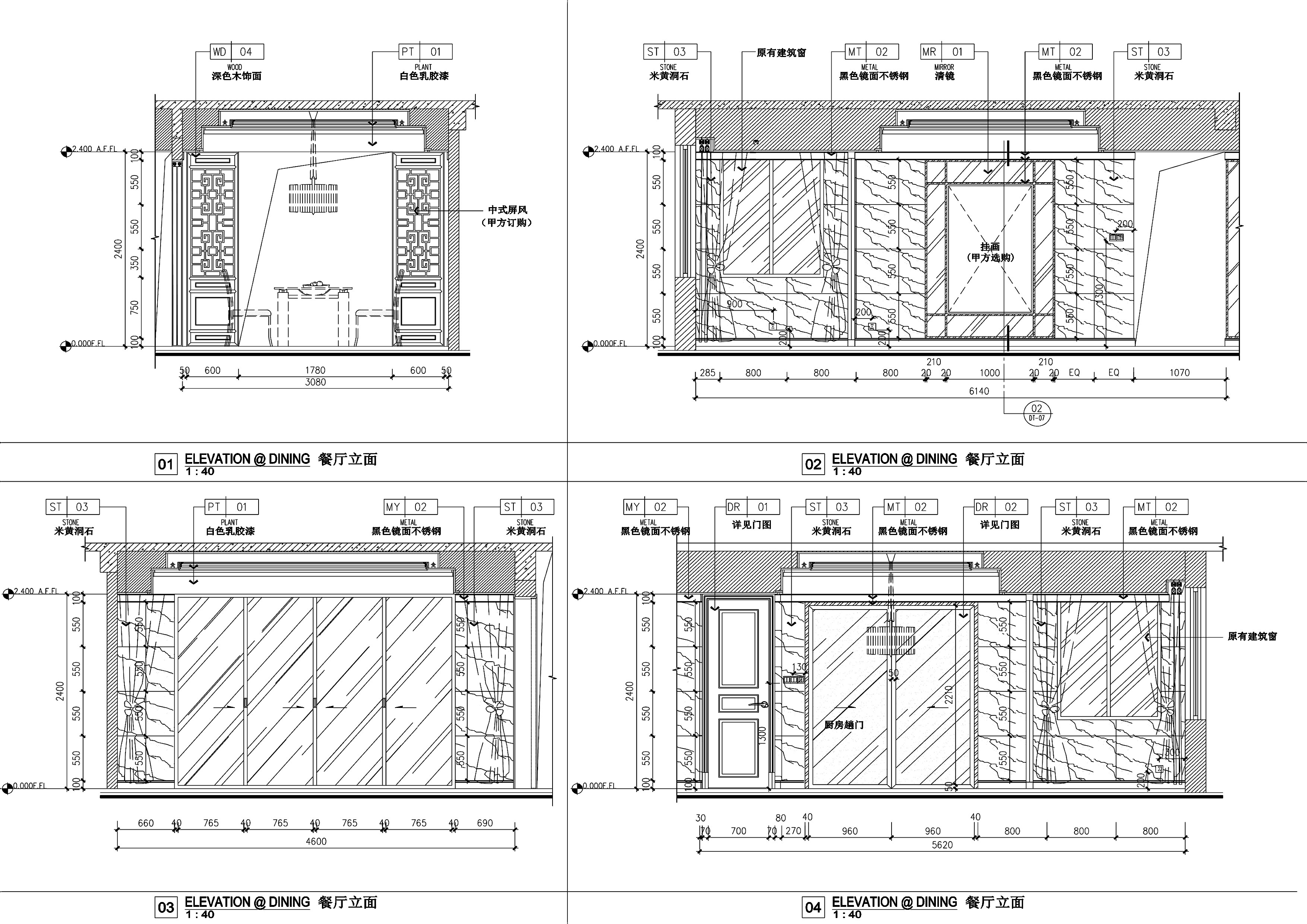
 东晖名苑CAD施工图套图,超详细的户型图建筑平面图立面图节点大样图及带建筑效果图设计施工图套图一整套施工图可供下载。易图网为您提供下载服务,好看实用。

东晖名苑CAD施工图套图,CAD建筑图纸下载

ID:14125
软     件:sketchup 大     小:21.60MB 上 传 时 间:20190724 消 耗 积 分:30
  • 收藏 ()
  • 评论 ()
  • ⚠图纸报错

普通会员

关注
  • 欧式连排别墅草图大师模型,别墅sketchup模型免费下载
  • 欧式连排别墅草图大师模型,别墅sketchup模型免费下载
  • 欧式连排别墅草图大师模型,别墅sketchup模型免费下载
SU模型、3D模型、贴图、材质、CAD施工图素材:

su模型,su素材库,3d模型,3d模型库,3d模型下载,3d模型素材,3dmax模型免费下载,cad施工图纸,3d材质贴图,沙发SU模型,椅凳SU模型,柜类SU模型,厨卫SU模型,3D沙发模型,3D陈设饰品,3D柜类模型,3D家装空间,家装CAD图纸,CAD图库,CAD节点详图,橱柜衣柜CAD图纸,CAD施工图,居住建筑效果图,工业建筑效果图,公共建筑效果图

友情链接 热门模型 免费模型