yituLogo
当前的位置:首页 > 室内CAD图纸 > cad > 家装图纸 > 家居 > 北欧三室两厅120㎡锦花园施工图CAD图纸dwg文件分享

图纸介绍

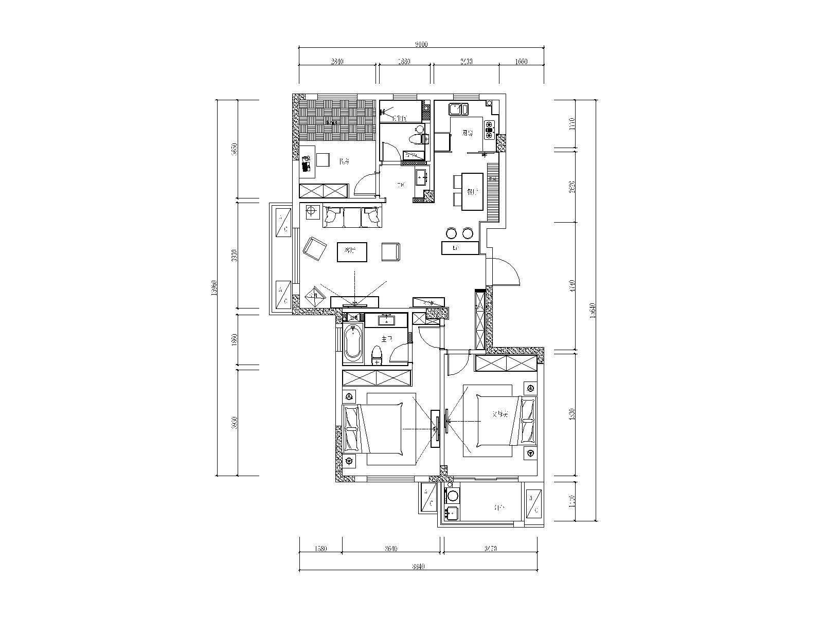
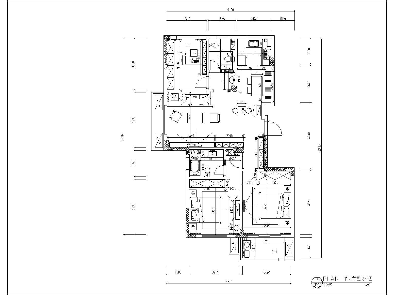
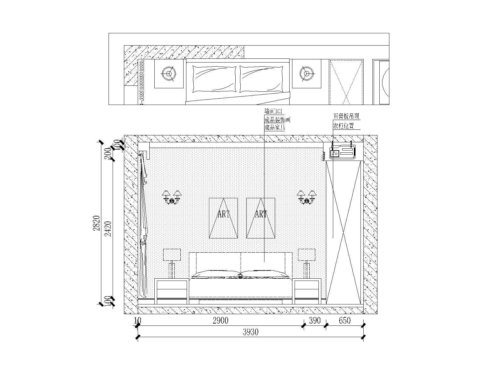
 北欧三室两厅120㎡锦园施工图CAD图纸dwg文件,卧室布局设计图,餐厅设计图,客厅设计图,梯间设计图各种精准图纸。易图网为您提供下载服务,好看实用。

北欧三室两厅120㎡锦花园施工图CAD图纸dwg文件分享

ID:13642
软     件:sketchup 大     小:51.00MB 上 传 时 间:20190722 消 耗 积 分:30
  • 收藏 ()
  • 评论 ()
  • ⚠图纸报错

普通会员

关注
  • 现代衣服展架草图大师模型,衣服展架sketchup模型skp文件分享
  • 现代衣服鞋包鞋柜组合su模型,衣服sketchup模型skp文件分享
  • 现代挂衣架服饰鞋子组合su模型,挂衣架sketchup模型skp文件分享
SU模型、3D模型、贴图、材质、CAD施工图素材:

su模型,su素材库,3d模型,3d模型库,3d模型下载,3d模型素材,3dmax模型免费下载,cad施工图纸,3d材质贴图,沙发SU模型,椅凳SU模型,柜类SU模型,厨卫SU模型,3D沙发模型,3D陈设饰品,3D柜类模型,3D家装空间,家装CAD图纸,CAD图库,CAD节点详图,橱柜衣柜CAD图纸,CAD施工图,居住建筑效果图,工业建筑效果图,公共建筑效果图

友情链接 热门模型 免费模型