yituLogo
当前的位置:首页 > 室内CAD图纸 > cad > 家装图纸 > 家居 > 现代两居风格施工图附效果图dwg文件下载

图纸介绍

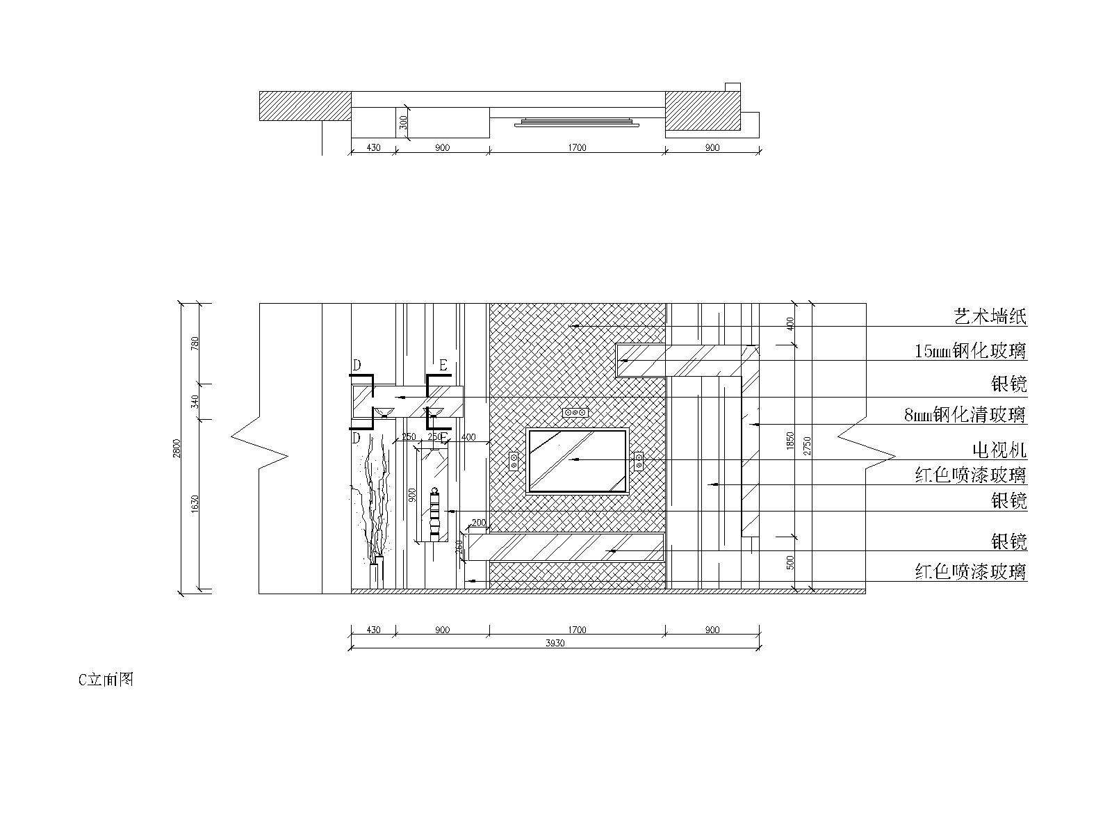
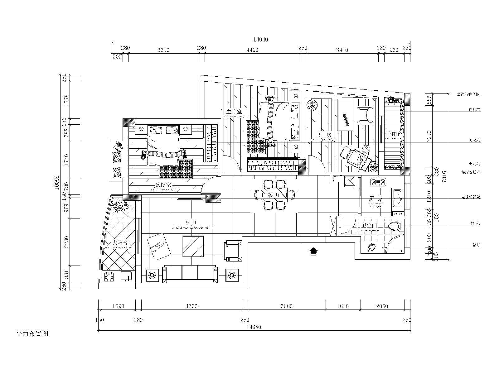
现代两居风格施工图附效果图,这是一套完整的设计图,里面有CAD施工图,也有逼真生动形象的效果图,与现代们审美相符,制作完整,好看实用,比较少的能与时俱进的模型,室内效果图表现必备。易图网为您提供下载服务,好看实用。

现代两居风格施工图附效果图dwg文件下载

ID:13501
软     件:sketchup 大     小:1.70MB 上 传 时 间:20190719 消 耗 积 分:30
  • 收藏 ()
  • 评论 ()
  • ⚠图纸报错

zzx 普通会员

关注
  • 现代美容院接待大厅草图大师模型,美容院sketchup模型下载
  • 现代轻奢美容SPA会所草图大师模型,美容院su模型下载
  • 现代手机店草图大师模型,手机店su模型下载
SU模型、3D模型、贴图、材质、CAD施工图素材:

su模型,su素材库,3d模型,3d模型库,3d模型下载,3d模型素材,3dmax模型免费下载,cad施工图纸,3d材质贴图,沙发SU模型,椅凳SU模型,柜类SU模型,厨卫SU模型,3D沙发模型,3D陈设饰品,3D柜类模型,3D家装空间,家装CAD图纸,CAD图库,CAD节点详图,橱柜衣柜CAD图纸,CAD施工图,居住建筑效果图,工业建筑效果图,公共建筑效果图

友情链接 热门模型 免费模型