yituLogo
当前的位置:首页 > 室内CAD图纸 > cad > 家装图纸 > 家居 > 欧式4室2厅2卫滨湖假日家居CAD全套施工图

图纸介绍

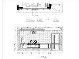
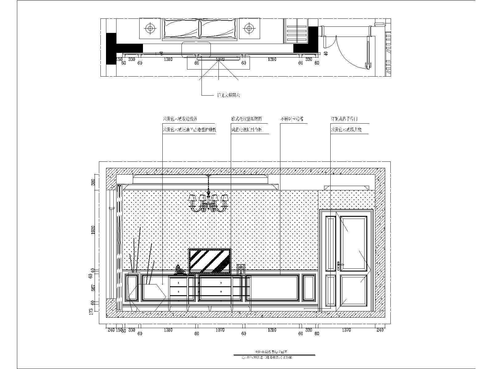
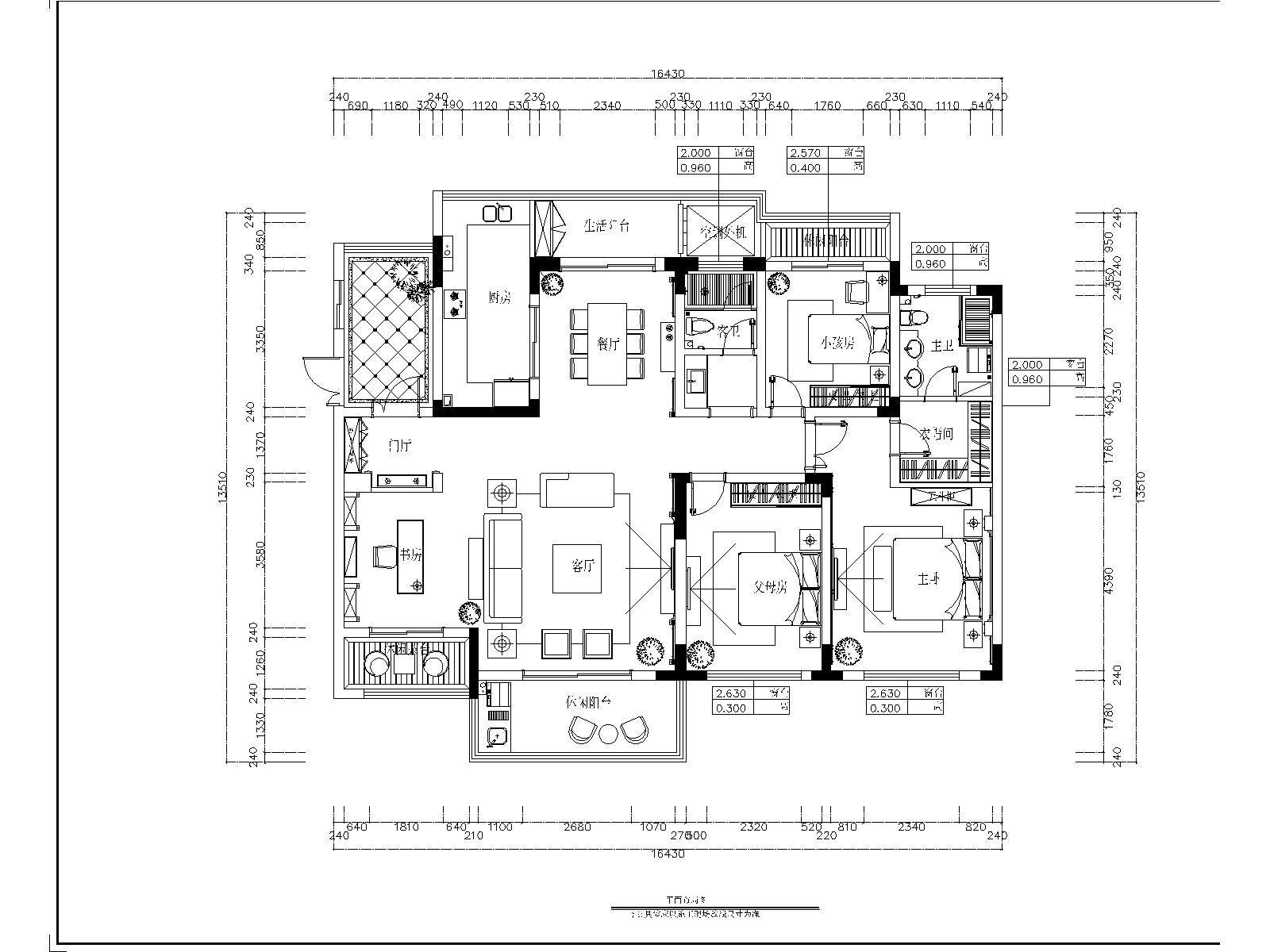
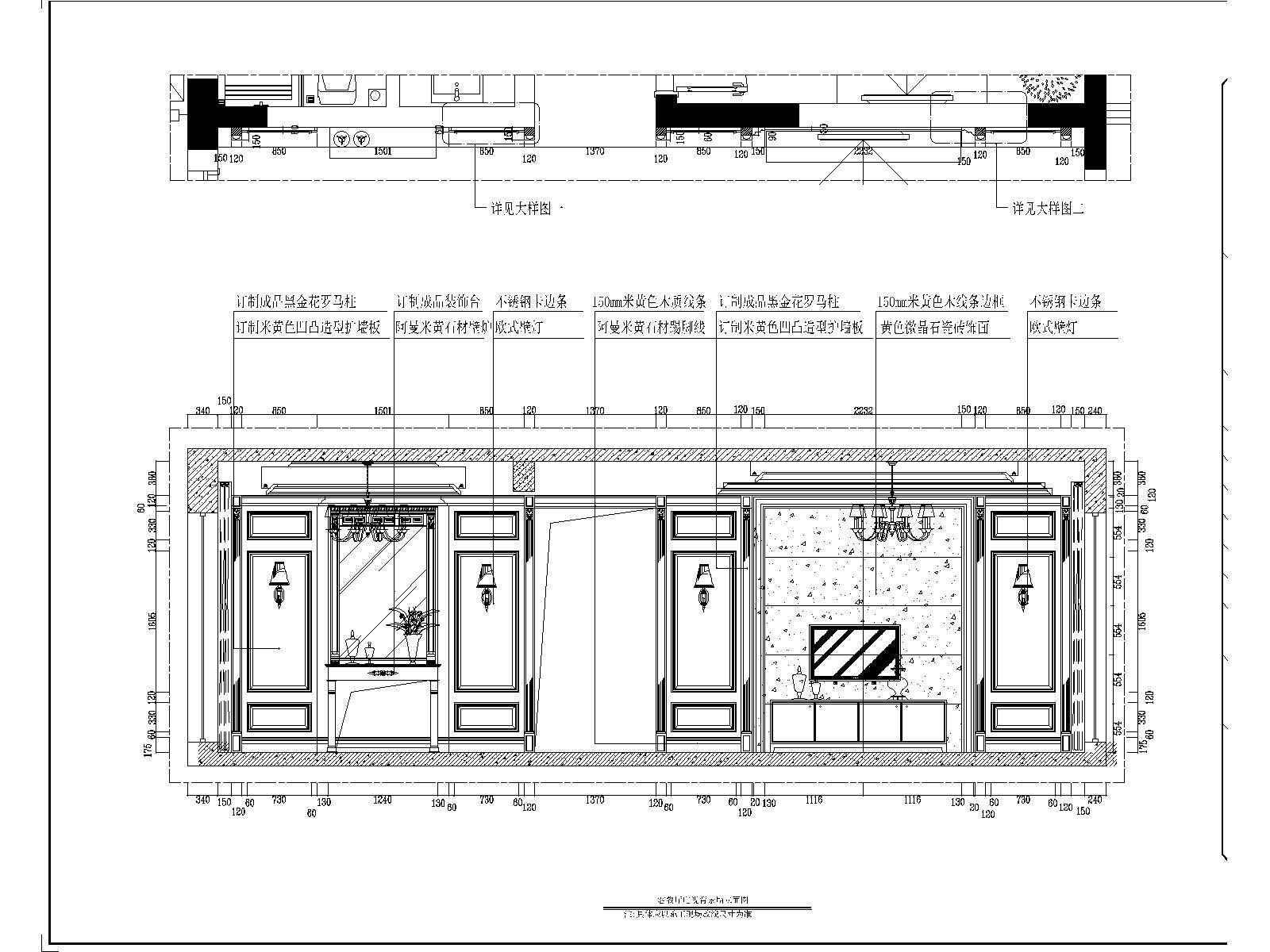
欧式4室2厅2卫滨湖假日家居CAD全套施工图,欧式风格将经典元素融入现代的审美中,运用先进的制造工艺诠释新古典主义,其优雅古典的造型非常独特,而又充满复古气息,外加现代实用精美的艺术设计风格,让家中呈现一种自然、舒适、干净之美。易图网为您提供下载服务,好看实用。

欧式4室2厅2卫滨湖假日家居CAD全套施工图

ID:13272
软     件:sketchup 大     小:13.70MB 上 传 时 间:20190718 消 耗 积 分:30
  • 收藏 ()
  • 评论 ()
  • ⚠图纸报错

yejun 普通会员

关注
  • 现代小鸟木雕草图大师模型,小鸟木雕sketchup模型下载
  • 中式山水画草图大师模型,山水画sketchup模型下载
  • 中式装饰画草图大师模型,装饰画sketchup模型下载
SU模型、3D模型、贴图、材质、CAD施工图素材:

su模型,su素材库,3d模型,3d模型库,3d模型下载,3d模型素材,3dmax模型免费下载,cad施工图纸,3d材质贴图,沙发SU模型,椅凳SU模型,柜类SU模型,厨卫SU模型,3D沙发模型,3D陈设饰品,3D柜类模型,3D家装空间,家装CAD图纸,CAD图库,CAD节点详图,橱柜衣柜CAD图纸,CAD施工图,居住建筑效果图,工业建筑效果图,公共建筑效果图

友情链接 热门模型 免费模型