SUQQ群
QQ扫一扫
图纸深度:施工图 图纸格式:JPG,CAD2000,PDF,PPT
设计风格:现代风格 包含图片:效果图
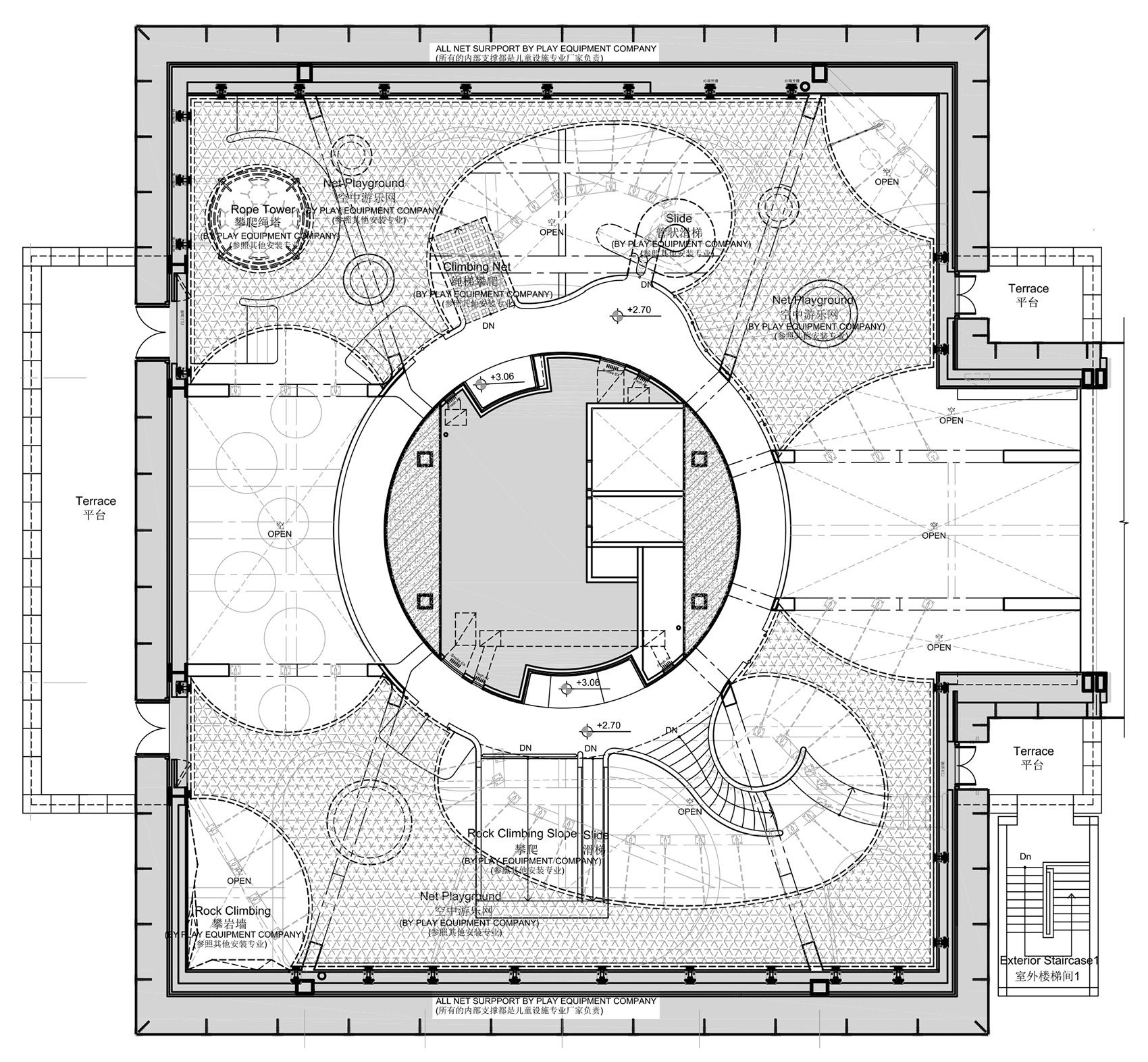
内容简介;儿童区底层综合天花平面图、咖啡区综合天花布置图、休息区综合天花平面图、中庭区施工图、儿童区底层地铺平面图、休息区地铺平面图、中庭区地铺平面图、家具索引平面图、放大儿童区入口大厅平面图、卫生间平面图、休息区剖面图等,功能布局是整个商业空间的核心,功能布局是否合理,直接影响到商店的经济效益及其形象的塑造,切不可等闲视之。
另附效果图

施工图

施工图

施工图

施工图

施工图

模型图

模型图

模型图

模型图

模型图

效果图

效果图

效果图

效果图

效果图

效果图

效果图

效果图
su模型,su素材库,3d模型,3d模型库,3d模型下载,3d模型素材,3dmax模型免费下载,cad施工图纸,3d材质贴图,沙发SU模型,椅凳SU模型,柜类SU模型,厨卫SU模型,3D沙发模型,3D陈设饰品,3D柜类模型,3D家装空间,家装CAD图纸,CAD图库,CAD节点详图,橱柜衣柜CAD图纸,CAD施工图,居住建筑效果图,工业建筑效果图,公共建筑效果图
Copyright 易图网 2006-2025 All Rights Reserved ICP证:蜀ICP备2023015644号-6
四川鑫众焱信息技术服务有限公司| 地址:绵阳市涪城区瀚威城市中心1栋1单元42层2号