yituLogo
当前的位置:首页 > 室内CAD图纸 > cad > 餐饮娱乐 > 餐饮空间 > 优雅型西餐厅装修CAD图纸,餐厅cad设计图纸下载

图纸介绍

                                   空间划分:成套餐饮空间                                                             图纸深度 :施工图

                                   餐饮类型:餐厅                                                                             图纸格式:JPG

                                  设计风格:现代

资料为:优雅型西餐厅装修CAD图纸

资料内容包括:全套施工图、餐厅立面图、插座布置图、开关布置图、平面图布置图等,空间设置合理规范,具有较高的参考价值,可作为参考学习的模板,供设计师、建筑师下载参考。

部分图纸展示如下:

<a href=https://www.yitu.cn/sketchup/canting/index.html target=_blank class=infotextkey><a href=https://www.yitu.cn/su/7825.html target=_blank class=infotextkey>餐厅</a></a>立面图.jpg

 

餐厅立面图

 

<a href=https://www.yitu.cn/su/7656.html target=_blank class=infotextkey>插座</a>布置图.jpg

 

插座布置图

 

<a href=https://www.yitu.cn/su/7656.html target=_blank class=infotextkey>插座</a>布置图1.jpg

 

插座布置图

 

开关布置图.jpg

 

开关布置图

 

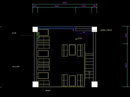
<a href=https://www.yitu.cn/su/7392.html target=_blank class=infotextkey>平面</a>图布置图.jpg

 

平面图布置图

优雅型西餐厅装修CAD图纸,餐厅cad设计图纸下载

ID:91382
软     件:sketchup 大     小:0.40MB 上 传 时 间:20211021 消 耗 积 分:10
  • 收藏 ()
  • 评论 ()
  • ⚠图纸报错

qianqian 普通会员

关注
  • 户外垃圾桶
  • 户外垃圾桶
  • 户外垃圾桶
SU模型、3D模型、贴图、材质、CAD施工图素材:

su模型,su素材库,3d模型,3d模型库,3d模型下载,3d模型素材,3dmax模型免费下载,cad施工图纸,3d材质贴图,沙发SU模型,椅凳SU模型,柜类SU模型,厨卫SU模型,3D沙发模型,3D陈设饰品,3D柜类模型,3D家装空间,家装CAD图纸,CAD图库,CAD节点详图,橱柜衣柜CAD图纸,CAD施工图,居住建筑效果图,工业建筑效果图,公共建筑效果图

友情链接 热门模型 免费模型