yituLogo
当前的位置:首页 > 室内CAD图纸 > cad > 餐饮娱乐 > 餐饮空间 > 南通赛格广场猫屎咖啡店装饰施工图CAD图纸.,咖啡店cad设计图纸下载

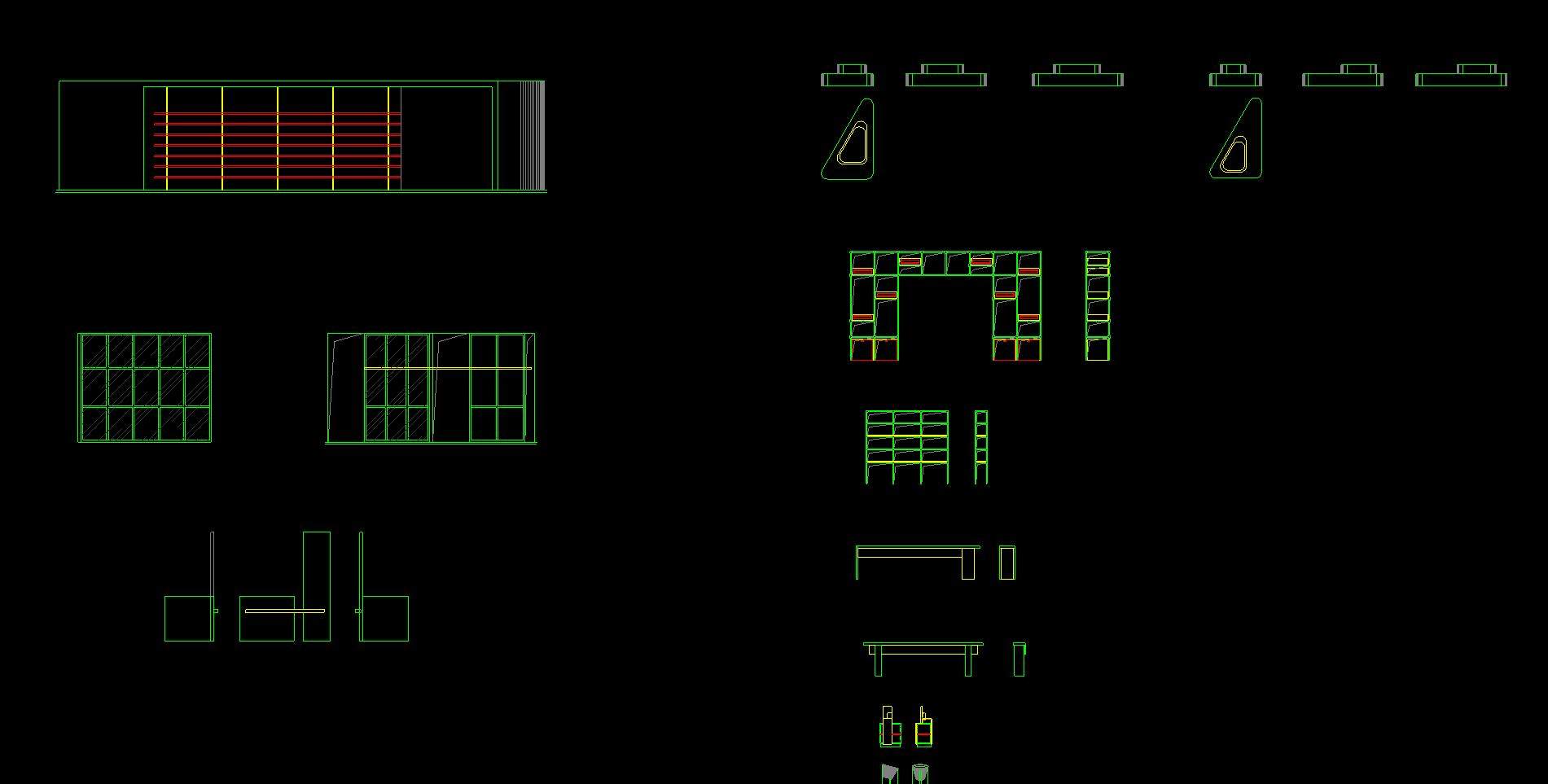
图纸介绍

                                       空间划分:成套餐饮空间                                                        图纸深度 :施工图

                                      餐饮类型:咖啡店                                                                     图纸格式:JPG

                                      设计风格:现代

资料为:南通赛格广场猫屎咖啡店装饰施工图CAD图纸

资料内容包括:全套施工图、猫屎咖啡赛格广场店大样图、猫屎咖啡赛格广场店立面图、猫屎咖啡赛格广场店平面图等,空间设置合理规范,具有较高的参考价值,可作为参考学习的模板,供设计师、建筑师下载参考。

部分图纸展示如下:

猫屎咖啡赛格广场店大样图.jpg

 

猫屎咖啡赛格广场店大样图

猫屎咖啡赛格广场店大样图1.jpg

 

猫屎咖啡赛格广场店大样图1

 

猫屎咖啡赛格广场店立面图.jpg

 

猫屎咖啡赛格广场店立面图

 

猫屎咖啡赛格广场店立面图1.jpg

 

猫屎咖啡赛格广场店立面图

 

猫屎咖啡赛格广场店<a href=https://www.yitu.cn/su/7392.html target=_blank class=infotextkey>平面</a>图.jpg

 

猫屎咖啡赛格广场店平面

南通赛格广场猫屎咖啡店装饰施工图CAD图纸.,咖啡店cad设计图纸下载

ID:91255
软     件:sketchup 大     小:18.30MB 上 传 时 间:20211012 消 耗 积 分:20
  • 收藏 ()
  • 评论 ()
  • ⚠图纸报错

qianqian 普通会员

关注
  • 户外垃圾桶
  • 户外垃圾桶
  • 户外垃圾桶
SU模型、3D模型、贴图、材质、CAD施工图素材:

su模型,su素材库,3d模型,3d模型库,3d模型下载,3d模型素材,3dmax模型免费下载,cad施工图纸,3d材质贴图,沙发SU模型,椅凳SU模型,柜类SU模型,厨卫SU模型,3D沙发模型,3D陈设饰品,3D柜类模型,3D家装空间,家装CAD图纸,CAD图库,CAD节点详图,橱柜衣柜CAD图纸,CAD施工图,居住建筑效果图,工业建筑效果图,公共建筑效果图

友情链接 热门模型 免费模型