yituLogo
当前的位置:首页 > 室内CAD图纸 > cad > 餐饮娱乐 > 餐饮空间 > 中式风格火锅餐饮设计图,火锅店CAD施工图下载

图纸介绍

             空间划分:成套餐厅                                         图纸深度:施工图

             餐饮类型:火锅餐厅                                         设计风格:中式餐厅

             图片格式:JPG                                              

资料为:中式风格火锅餐饮设计图。

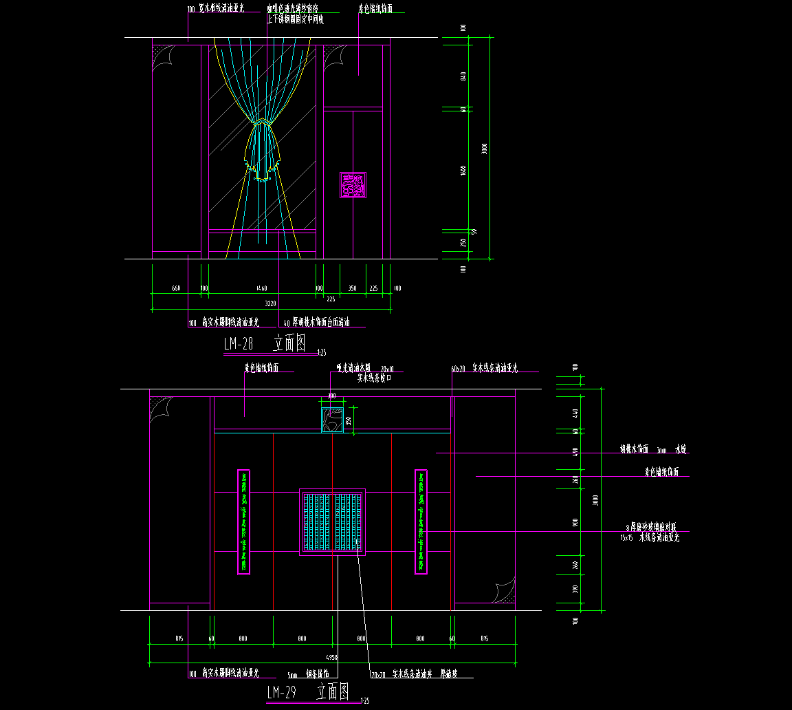
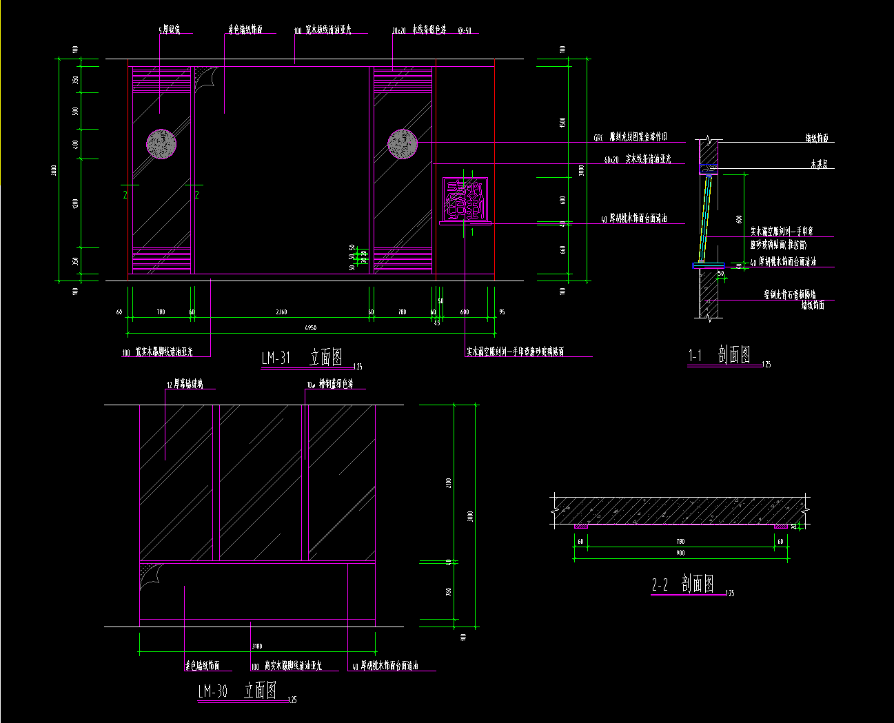
资料内容包括:全套CAD施工图,剖面图,火锅店立面图,门厅玻璃吊顶大样图,一层平面布置图,二层平面布置图,一层面铺设图,二层面铺设图,一层尺寸定位以及面积核算图,二层尺寸定位以及面积核算图,一层天棚布置图,二层天布置图,一层立面索引图,二层立面索引图,内容详实,作图规范,图纸中无错漏碰缺,具有较高的参考价值,可供设计师参考。

部分图纸展示:

QQ截图20200615154515.png

 

立面图

 

QQ截图20200615154522.png

 

立面图

 

QQ截图20200615154527.png

 

背立面图

 

QQ截图20200615154537.png

 

立面图

 

QQ截图20200615154627.png

 

立面图

 

QQ截图20200615154716.png

 

缩略图

QQ截图20200615154522.png

QQ截图20200615154515.png

中式风格火锅餐饮设计图,火锅店CAD施工图下载

ID:24293
软     件:sketchup 大     小:4.50MB 上 传 时 间:20200616 消 耗 积 分:30
  • 收藏 ()
  • 评论 ()
  • ⚠图纸报错

qianqian 普通会员

关注
  • 户外垃圾桶
  • 户外垃圾桶
  • 户外垃圾桶
SU模型、3D模型、贴图、材质、CAD施工图素材:

su模型,su素材库,3d模型,3d模型库,3d模型下载,3d模型素材,3dmax模型免费下载,cad施工图纸,3d材质贴图,沙发SU模型,椅凳SU模型,柜类SU模型,厨卫SU模型,3D沙发模型,3D陈设饰品,3D柜类模型,3D家装空间,家装CAD图纸,CAD图库,CAD节点详图,橱柜衣柜CAD图纸,CAD施工图,居住建筑效果图,工业建筑效果图,公共建筑效果图

友情链接 热门模型 免费模型