yituLogo
当前的位置:首页 > 室内CAD图纸 > cad > 餐饮娱乐 > 餐饮空间 > 咖啡与茶室内设计施工图

图纸介绍

 图纸深度:施工图                    设计风格:现代风格

图纸格式:CAD2000                设计时间:2014

包含图片:效果图内容包含:目录说明,一二层总平面,公共区,吧台详图,体验馆,卫生间详图,二层公共区,商务区,卡包,梯详图另附:效果图2张,施工图jpg

项目根据实际情况的了解,做出一系列合理的调整规划与设计思考,针对各个区域做出相应的策略,完善各方面的装修建设,发挥出项目优势,推动项目的发展与进步。

 

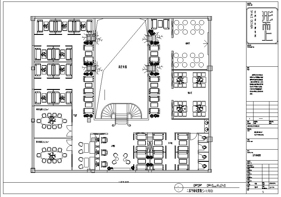
二层<a href=https://www.yitu.cn/su/7392.html target=_blank class=infotextkey>平面</a>布置图

 

二层平面布置图

 

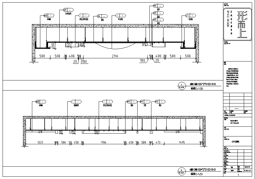
剖面图

 

剖面图

 

一层公共区域立面图

 

一层公共区域立面图

 

一层<a href=https://www.yitu.cn/su/7392.html target=_blank class=infotextkey>平面</a>布置图

 

一层平面布置图

 

包间立面图

 

包间立面图

 

二层包间效果图

 

二层包间效果图

 

二层上网区效果图

 

二层上网区效果图

 

缩略图

 

缩略图

咖啡与茶室内设计施工图

ID:17021
软     件:sketchup 大     小:22.50MB 上 传 时 间:20191105 消 耗 积 分:30
  • 收藏 ()
  • 评论 ()
  • ⚠图纸报错

join19 普通会员

关注
SU模型、3D模型、贴图、材质、CAD施工图素材:

su模型,su素材库,3d模型,3d模型库,3d模型下载,3d模型素材,3dmax模型免费下载,cad施工图纸,3d材质贴图,沙发SU模型,椅凳SU模型,柜类SU模型,厨卫SU模型,3D沙发模型,3D陈设饰品,3D柜类模型,3D家装空间,家装CAD图纸,CAD图库,CAD节点详图,橱柜衣柜CAD图纸,CAD施工图,居住建筑效果图,工业建筑效果图,公共建筑效果图

友情链接 热门模型 免费模型