SUQQ群
QQ扫一扫
图纸深度:施工图 项目位置:北京
包含图片:效果图万达铂尔曼五星大饭店全套装修CAD施工图,内含高清效果图28张,实景效果图39张、地下一、二层设计施工图、二层中餐厅设计施工图、全日制餐厅设计施工图、日本餐厅设计施工图、一层大堂施工图、最新终合施工图等。
内容简介:项目根据实际情况的了解,做出一系列合理的调整规划与设计思考,针对各个区域做出相应的策略,完善各方面的装修建设,发挥出项目优势,推动项目的发展与进步。

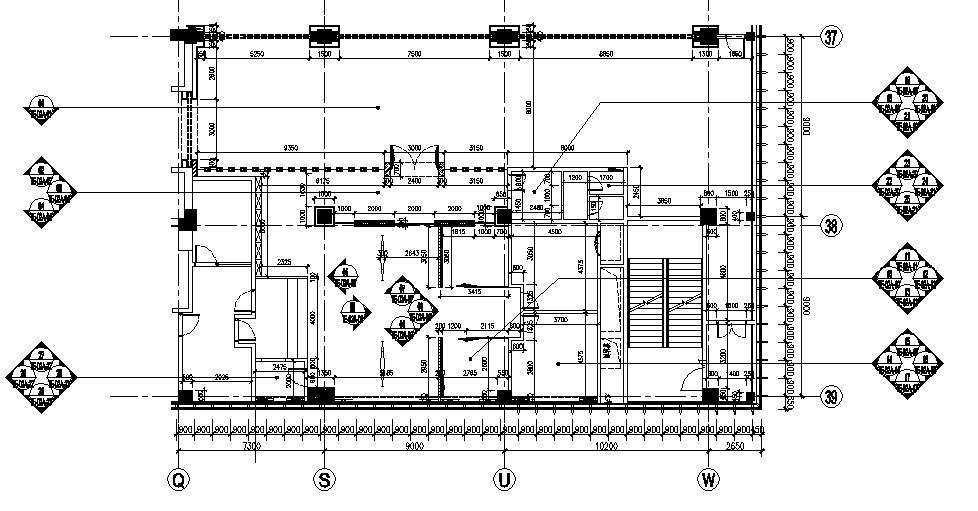
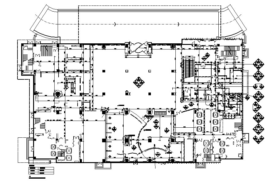
北京万达铂尔曼大饭店——一层平面图



北京万达铂尔曼大饭店——三层家具平面图

北京万达铂尔曼大饭店——一层大堂立面图(一)

北京万达铂尔曼大饭店——一层大堂立面图(二)

北京万达铂尔曼大饭店——一层大堂立面图(三)

北京万达铂尔曼大饭店——一层大堂立面图(四)

北京万达铂尔曼大饭店——大堂立面图附件预览

北京万达铂尔曼大饭店——大堂吧效果图

北京万达铂尔曼大饭店——大堂正面效果图

北京万达铂尔曼大饭店——电梯厅效果图(一)

北京万达铂尔曼大饭店——电梯厅效果图(二)
上一篇:新中式茶楼概念方案及施工图
下一篇:新中式茶楼概念方案及施工图
su模型,su素材库,3d模型,3d模型库,3d模型下载,3d模型素材,3dmax模型免费下载,cad施工图纸,3d材质贴图,沙发SU模型,椅凳SU模型,柜类SU模型,厨卫SU模型,3D沙发模型,3D陈设饰品,3D柜类模型,3D家装空间,家装CAD图纸,CAD图库,CAD节点详图,橱柜衣柜CAD图纸,CAD施工图,居住建筑效果图,工业建筑效果图,公共建筑效果图
Copyright 易图网 2006-2025 All Rights Reserved ICP证:蜀ICP备2023015644号-6
四川鑫众焱信息技术服务有限公司| 地址:绵阳市涪城区瀚威城市中心1栋1单元42层2号