SUQQ群
QQ扫一扫
项目位置:福建 设计风格:现代风格
包含图片:效果图建筑面积:780㎡本资料为上岛西餐厅混搭风格装修设计施工图(含效果图)
本项目设计师以其商业定位为基点出发,门厅处,纯洁的白玫瑰木饰成为灯源的最佳佐料,镜面的设置使得灯光层次感更丰富,制造出浪漫的第一视觉感观。酒吧内,一个个夜光杯散射出绚烂的灯光,营造出焕彩优雅的氛围,整个空间如同沐浴在温暖的深海之中,浪漫的气息宛若鱼群在空间中肆意窜动。点状的灯光从天花板倾泻而下,吧台处晶莹的泡泡在闪烁,光影虚实间,美在流动。此外,设计师对于空间的区域过渡划分也十分巧妙,采用了有趣的隔断手法,飘扬的曲线围合及环绕的夜光杯既打破空间秩序,又塑造了秩序,增添了空间的时尚质感,起起伏伏的节奏犹如悠扬的琴声四处涌动。同时,设计师也巧妙地将低碳概念融入空间创作之中,大部分灯光均为低压照明,既节省了商业成本,也是出于空间环境的深层思考。

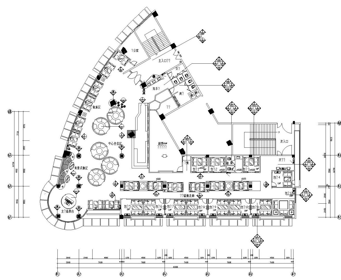
平面布置图

平面材料布置图


平面索引布置图

墙体定位图

天花尺寸定位图

餐厅效果图

用餐区效果图

用餐区效果图1

用餐区效果图2

局部效果图

局部效果图2
上一篇:无锡宴遇乡水瑶餐厅施工图
下一篇:无锡宴遇乡水瑶餐厅施工图
su模型,su素材库,3d模型,3d模型库,3d模型下载,3d模型素材,3dmax模型免费下载,cad施工图纸,3d材质贴图,沙发SU模型,椅凳SU模型,柜类SU模型,厨卫SU模型,3D沙发模型,3D陈设饰品,3D柜类模型,3D家装空间,家装CAD图纸,CAD图库,CAD节点详图,橱柜衣柜CAD图纸,CAD施工图,居住建筑效果图,工业建筑效果图,公共建筑效果图
Copyright 易图网 2006-2025 All Rights Reserved ICP证:蜀ICP备2023015644号-6
四川鑫众焱信息技术服务有限公司| 地址:绵阳市涪城区瀚威城市中心1栋1单元42层2号