yituLogo
当前的位置:首页 > 室内CAD图纸 > cad > 餐饮娱乐 > 餐饮空间 > 景点餐厅室内装修设计施工案例

图纸介绍

图纸深度:施工图                           项目位置:广东

设计风格:东南亚风格                    图纸格式:CAD2000

图纸张数:28张                               设计时间:2014

内容包含:平面图(平面布置图,天布置图,坪饰面图,天灯具定位图,索引图,);立面图(大厅卫生间,走道,餐厅);节点图,大样图等,针对餐厅的定 位及料理去延伸餐厅风格、视觉设计,再决定所有的设计元素、灯光功能及使用建材等部分。

另附:施工图jpg

像素:1280*800

 

 

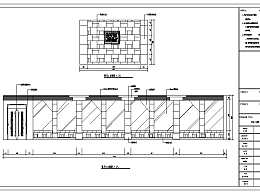
<a href=https://www.yitu.cn/sketchup/canting/index.html target=_blank class=infotextkey><a href=https://www.yitu.cn/su/7825.html target=_blank class=infotextkey>餐厅</a></a>立面图

 

 

餐厅立面图

 

 

<a href=https://www.yitu.cn/sketchup/canting/index.html target=_blank class=infotextkey><a href=https://www.yitu.cn/su/7825.html target=_blank class=infotextkey>餐厅</a></a>天<a href=https://www.yitu.cn/sketchup/huayi/index.html target=_blank class=infotextkey>花</a><a href=https://www.yitu.cn/su/7392.html target=_blank class=infotextkey>平面</a>图

 

 

餐厅平面

 

 

<a href=https://www.yitu.cn/sketchup/canting/index.html target=_blank class=infotextkey><a href=https://www.yitu.cn/su/7825.html target=_blank class=infotextkey>餐厅</a></a>柱详图

 

 

餐厅柱详图

 

 

<a href=https://www.yitu.cn/su/7043.html target=_blank class=infotextkey>服务台</a>总<a href=https://www.yitu.cn/su/7392.html target=_blank class=infotextkey>平面</a>图

 

 

服务台平面

 

 

接待厅立面图

 

 

接待厅立面图

 

 

接待厅<a href=https://www.yitu.cn/su/7392.html target=_blank class=infotextkey>平面</a>图

 

 

接待厅平面

 

 

门详图

 

 

门详图

 

 

剖面大样图

 

 

剖面大样图

 

 

缩略图

 

 

缩略图

景点餐厅室内装修设计施工案例

ID:16621
软     件:sketchup 大     小:3.20MB 上 传 时 间:20191031 消 耗 积 分:30
  • 收藏 ()
  • 评论 ()
  • ⚠图纸报错

wangyiting QQ登陆会员

关注
SU模型、3D模型、贴图、材质、CAD施工图素材:

su模型,su素材库,3d模型,3d模型库,3d模型下载,3d模型素材,3dmax模型免费下载,cad施工图纸,3d材质贴图,沙发SU模型,椅凳SU模型,柜类SU模型,厨卫SU模型,3D沙发模型,3D陈设饰品,3D柜类模型,3D家装空间,家装CAD图纸,CAD图库,CAD节点详图,橱柜衣柜CAD图纸,CAD施工图,居住建筑效果图,工业建筑效果图,公共建筑效果图

友情链接 热门模型 免费模型